User manual

Sélecteur programme et voyant de
fonctionnement: la sélection d’un programme se fait en
tournant le sélecteur programme indifféremment dans le sens
des aiguilles d’une montre ou le sens contraire, jusqu’à faire
coïncider le programme souhaité (voir "Tableau des
programmes") avec le repère pour la sélection du programme,
qui se trouve sur le sélecteur programme (position Allumé).
Le voyant de fonctionnement s’allume.
Les voyants des phases prévues par le programme
sélectionné clignotent.
Pour éteindre l’appareil, tourner le sélecteur programme
jusqu’à faire coïncider le repère pour la sélection du
programme avec le voyant de fonctionnement (position
Eteint).
Le voyant de fonctionnement s’éteint.
Il est en outre possible de programmer le réglage de
l’adoucisseur (voir paragraphe spécifique).
Touche "départ/annuler" (RESET): une fois le
programme de lavage sélectionné, appuyer sur cette touche
pour démarrer le déroulement du programme de lavage.
Le voyant départ/annuler (placé au-dessus de la touche)
s’allume.
Avec cette touche, il est possible d’annuler la sélection d’un
programme en cours.
Voyants lumineux: ont la signification suivante:
Lorsqu’un programme de lavage est sélectionné, les voyants
des phases prévues pour ce programme clignotent.
Une fois le programme démarré, les voyants des phases
s’éteignent. Seul le voyant de la phase en cours reste éclairé
avec une lumière fixe.
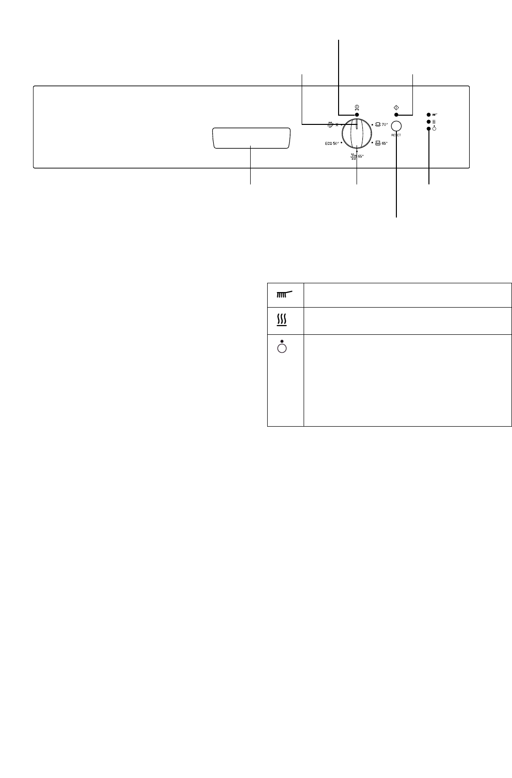
Le bandeau de commandes
7
Sélecteur programmes
Voyants lumineux
Poignée de porte
Voyant de fonctionnement
Voyant Départ/Annuler
Repère pour la sélection du programme
Touche départ/annuler
Lavage: s’allume lorsque la phase de lavage et
de rinçage sont en cours.
Séchage; s’allume lorsque la phase de séchage
est en cours.
Fin de programme: s’allume lorsque le
programme de lavage est terminé.
Assure en outre des fonctions indicatrices
supplémentaires:
- programmation du niveau de l’adoucisseur
d’eau,
- anomalie de fonctionnement.










