CD Receiver Instructions Manual
Table Of Contents

1
2
*
1
*
1
(ILLUMINATION)
1
2
3
4
5
6
3
15
3
*
2
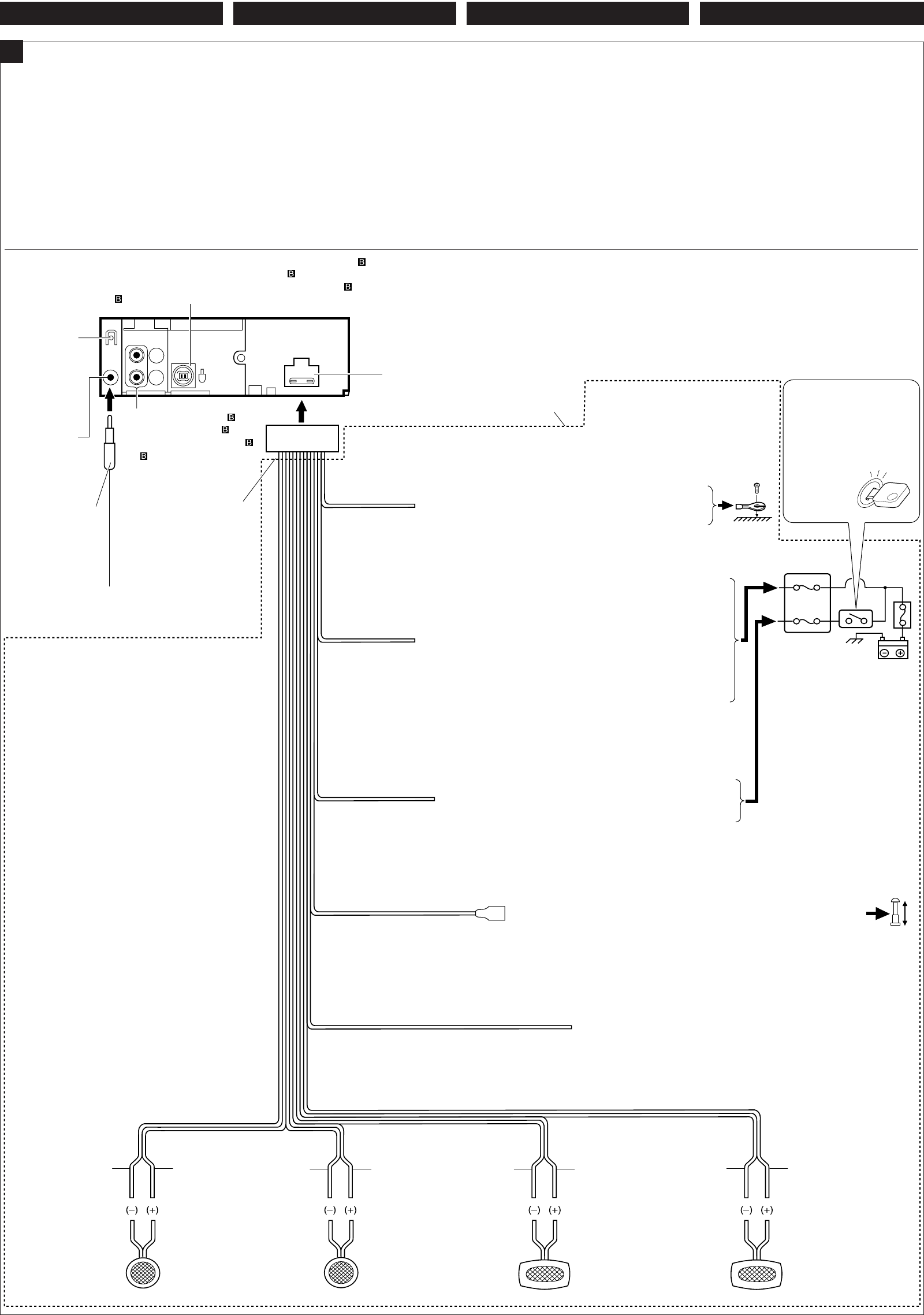
Before checking the operation of this unit prior to
installation, this lead must be connected, otherwise power
cannot be turned on.
*
2
!"#$%&'()*+,-.$/012345
!"#$%&'(
*
2
°ËÕπ°“√µ√«®Õ∫°“√∑”ß“π¢Õß™ÿ¥ª√–°Õ∫π’ȰËÕπ∑’Ë®–µ‘¥µ—Èß
µÈÕßµËÕ“¬µ–°—Ë«π’ȰËÕπ ¡‘©–π—Èπ®–‰¡Ë“¡“√∂‡ª‘¥‡§√◊ËÕ߉¥
15 A fuse
15 A
ø‘«Ï¢π“¥ 15 A
Yellow*
2
*
2
’‡À≈◊Õß*
2
Blue with white stripe
!"#$
’πÈ”‡ß‘π≈“¬¢“«
Red
’·¥ß
Orange with white stripe
!"#$
’È¡·∂∫¢“«
To car light control switch
!"#$%&'(
«‘µ´Ï§«∫§ÿ¡‰ø¢Õß√∂¬πµ√Ï
Fuse block
!"
·ºßø‘«
To a live terminal in the fuse block connecting to the car battery
(bypassing the ignition switch) (constant 12 V)
!"#$%&'()*+ !"#$,-./012
!"#$%&'()=
12 V
µËÕ°—∫¢—È«∑’Ë¡’°√–·‰øøÈ“„π·ºßø‘«Ï ´÷ËßµËÕ°—∫·∫µ‡µÕ√’Ë√∂¬πµ
(‚¥¬‰¡ËµÈÕß„™È«‘∑™Ï®ÿ¥√–‡∫‘¥) (12 ‚«≈∑ϧß∑’Ë)
To metallic body or chassis of the car
!"#$%&'
µËÕ°—∫‚§√ß‚≈À–À√◊Õ‡™´‘¢Õß√∂¬πµÏ
*
1
Not included for this unit
*
1
!"#$
*
1
‰¡Ë‰¥È„ÀÈ¡“°—∫™ÿ¥ª√–°Õ∫π
Black
’¥”
To an accessory terminal in the fuse block
!"#$%&'()*
µËÕ°—∫¢—ȫ˫πª√–°Õ∫„π·ºßø‘«
Gray with black stripe
!"#$
’‡∑“·∂∫¥”
White
’¢“«
White with black stripe
!"#$
’¢“«·∂∫¥”
Green with black stripe
!"#$
’‡¢’¬«·∂∫¥”
Gray
’‡∑“
Green
’‡¢’¬«
Purple with black stripe
!"#$
’¡Ë«ß·∂∫¥”
Purple
’¡Ë«ß
Rear ground terminal
!"#$%
®ÿ¥‡™◊ËÕ¡µËÕ“¬¥‘π¥È“πÀ≈—ß
To the remote lead of other equipment or automatic antenna if any (200 mA max.)
!"#$%&'()*+,-./0123456 200 mA
µËÕ“¬°—∫Õÿª°√≥ÏÕ◊ËπÀ√◊Õ‡“Õ“°“»Õ—µ‚π¡—µ‘∂È“¡’ (¢π“¥Ÿßÿ¥ 200 mA
)
Before connecting: Check the wiring in the
vehicle carefully. Incorrect connection may
cause serious damage to this unit.
The leads of the power cord and those of the
connector from the car body may be different in
color.
1
Connect the colored leads of the power cord
in the order specified in the illustration
below.
2
Connect the antenna cord.
3
Finally connect the wiring harness to the unit.
A
Left speaker (rear)
!"#$%
≈”‚æß´È“¬ (À≈—ß)
Right speaker (front)
!"#$%
≈”‚æß¢«“ (ÀπÈ“)
Left speaker (front)
!"#$%
≈”‚æß´È“¬ (ÀπÈ“)
Right speaker (rear)
!"#$%
≈”‚æß¢«“ (À≈—ß)
Ignition switch
!
«‘∑™Ï®ÿ¥√–‡∫‘¥
Typical Connections / !"#$ / °“√‡™◊ËÕ¡µËÕ·∫∫ª°µ‘ /
Antenna terminal
!
¢—È«“¬Õ“°“»
Line out (see diagram )
!"#$%&
“¬ÕÕ° (Line out) (¥Ÿ·ºπ¿Ÿ¡ )
To CD changer or another external component (see diagram )
=CD !"#$%&'=( !
™ËÕ߇’¬∫µËÕ¢Õ߇§√◊ËÕ߇≈Ëπ´’¥ CD ≈À–Õÿª°√≥Ï¿“¬πÕ° (¥Ÿ·ºπ¿Ÿ¡ )
!"#$%&'()*+%,&
!"#$%&'
!" #$%!&'(" )*+,-.
!"
1
!"#$%&'()*+,-./+0
2
!" #$%&'
3
!"#$%&'&()*+
°ËÕ•∑”°“•‡™•ËÕ¡µËÕ : µ•«®†Õ•°“•‡¥‘•†“¬‰ø„•••¬•µÏլ˓ߕ–¡—
¥•–«—լ˓„ÀȺ‘¥æ•“¥„•°“•‡™•ËÕ¡µËÕ™ÿ¥ª•–°Õ•™ÿ¥•’
°“•‡™•ËÕ¡µËÕº‘¥æ•“¥Õ“®∑”„Àȇ°‘¥§«“¡‡†’¬À“¬•È“¬·•ß°—•™ÿ¥ª•–
°Õ••’ȉ¥È“•µ–°—Ë«¢Õ߆“¬‰ø ·•–¢ÕßÕÿª°••ϵËÕ‡™•ËÕ¡®“°µ—«•
ß••Õ“®¡’†’∑’ˉ¡Ë‡À¡•Õ•°—•
1
µËÕ“¬‰ø’µ“¡≈”¥—∫∑’Ë√–∫ÿ„π√Ÿª¥È“π≈Ë“ß
2
‡™◊ËÕ¡µËÕ°—∫“¬Õ“°“»
3
ÿ¥∑È“¬ µËÕË«π§«∫§ÿ¡°“√‡¥‘𓬉ø‡¢È“°—∫™ÿ¥ª√–°Õ∫™ÿ¥π’È
‰∑¬
ENGLISH
WOł–uLM« öOu²«WOł–uLM« öOu²«
WOł–uLM« öOu²«WOł–uLM« öOu²«
WOł–uLM« öOu²«
∫q?O?u?²?UÐ ¡b³« q³∫q?O?u?²?UÐ ¡b³« q³
∫q?O?u?²?UÐ ¡b³« q³∫q?O?u?²?UÐ ¡b³« q³
∫q?O?u?²?UÐ ¡b³« q³…—U?O??« w? „ö?Ýô« WJ³ý s bQð
Ê« s?J?1 Æ“U?N?'« qOuð WOKLŽ w QDš Àb×¹ ô v²Š WbÐ
Æ“UN−K wIOIŠ qDŽ ‰uBŠ v« ¡vÞU)« qOu²« V³¹
qu*« pKÝË WOzUÐdNJ« WUD« pKÝ Êu nK²¹ Ê« sJ1
Æ…—UO« qJO¼ Êu sŽ
±±
±±
±
WOzUÐdNJ« WUD« pK W½uK*« „öÝô« qË«
ÆqHÝô« w œułu*« rÝd« w ·uu*« VOðd²UÐ
≤≤
≤≤
≤
qË«Æwz«uN« pKÝ
≥≥
≥≥
≥
qË« ¨«dO𫯓UN'« l „öÝô« qUŠ
błË Ê« wJOðUuðËô« wz«uN« Ë« dšô« “UN−K bFÐ sŽ rJײ« pKÝ v«
©dO³« wKO ≤∞∞ bŠ vB«®
w½bF*« …—UO« qJO¼ Ë« w½bF*« r'« v«
«—Ëd® W¹—UD³« l Wuu*« “uOH« WŽuL− w w(« ·dD« v«
≤ XÐUŁ® ©‰UF²ýô« ÕU²H0©Xu ±
*
±
Ëe dOžÒ“UN'« «c¼ l œ
‰UF²ýô« ÕU²H
iOÐôUÐ jD wUIðdÐ pKÝ
iOÐôUÐ jD ‚—“« pKÝ
dLŠ√
*≤
dH√
œuÝ√
dO³« ±µ “uO
wHK)« i¹—Q²« ·dÞ
wz«uN« ·dÞ
*∫≤V−¹ ¨VOd²« q³ “UN'« «c¼ qOGAð h× q³
WUD« qOuð sJ1 ô p– ·öÐ ¨pK« «c¼ qOuð
ÆWOzUÐdNJ«
œuÝôUÐ jD iOЫ pKÝ
iOÐ√
©WOUô«® ÈdO« WŽUL«
œuÝôUÐ jD ÍœU— pKÝ
ÍœU—
œuÝôUÐ jD dCš« pKÝ
©WOUô«® vMLO« WŽUL«
dCš«
œuÝôUÐ jD w½«uł—« pKÝ
©WOHK)«® ÈdO« WŽUL«
w½«uł—«
©WOHK)«® vMLO« WŽUL«
“uOH« WŽuL− qš«œ wU{ô« ·dD« v«
“uOH« WŽuL−
jD<« dE½«® j)« Ãdš
©
błË Ê« wJOðUuðËô« WUD« wz«u¼ v«
CD
b³ f³IÒ wł—U)« X½U½u³LJ« “UNł “UNł Ë« W−b*« W½«uDÝô« ‰ jD<« dE½«®©
wÐdŽwÐdŽ
wÐdŽwÐdŽ
wÐdŽ
Instal3-4_KD-G305[U]2 29/10/03, 8:53 AM3










