Operating Guide

REV-8/09
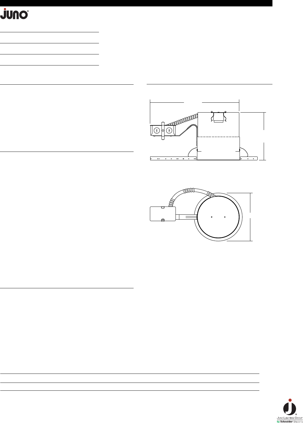
DIMENSIONS
6” DELUXE UNIVERSAL 
TC REMODEL HOUSING
INCANDESCENT LAMPS
TC2R
G1.1.2
Project:
Fixture Type:
Location:
Contact/Phone:
13 3/4"
5 1/4" MIN
7 5/16" 
7 1/4" MAX
PRODUCT CODES
Catalog Number Input Voltage Lamp Rating (max.)
TC2R 120V A19/A21/BR30/BR40/MR16/PAR16/PAR20/PAR30/PAR30L/PAR38/R20/R30 (See reverse for max. trim rating)
PRODUCT DESCRIPTION
TC Remodel Housing for remodel application where back side of
ceiling is not accessible • Installs through an opening in the ceiling
from below • Secured in place by factory installed remodel
springs • Design for use in non-insulated areas • If installed where
insulation is present, the insulation must be pulled back 3” from all
sides of the TC housing.
PRODUCT SPECIFICATIONS
Lamp Lamp ratings based on trim selected–see reverse.
Socket Medium base porcelain with nickel-plated copper screw
shell • Drop socket with spring to accommodate certain trim
installation.
Trims  Trim selection shown on reverse.
Labels  U.L. listed for through-branch wiring, damp locations and
IP • Product thermally protected against improper use of lamps or
insulation • Union made • UL and cUL listed • Trims 20, 21, 22,
239, 240, 241, 242, 243, 9000 and 9900 are wet location
approved for covered ceiling applications • Trims 28, 29 are wet
location approved for covered ceiling applications, when used
with outdoor rated lamps.
Testing  All reports are based on published industry procedures;
field performance may differ from laboratory performance.
Product specifications subject to change without notice.
INSTALLATION
Junction Box Pre-wired junction box, UL and cUL listed for through-
branch wiring, maximum 4 No. 12 AWG 90˚ C branch circuit
conductors (2 in, 2 out) • Junction box provided with removable
access plate, (5) 
1
⁄2” knockouts, (4) Non-metallic sheathed cable
connectors and ground wire • Knockouts equipped with pryout
slots.
Housing TC housing, 22-gauge white painted steel • Double
stack adjustable feature enables remodel springs to accommodate
up to 1
3
⁄4” ceiling thickness • Adjusts from 7
1
⁄4” max. height down
to 5
1
⁄4” min. height.
6 3/4” CEILING CUTOUT


