
ETX 513/515
h
2
h
3
h
4
s
l
8
x
d
1
l
1
m
1
y
m
2
h
7
h
6
h
1
z
d
2
b
7
c
l
b
8
l
b
1
b
6
Ast
b
14
b
2
Wa
b
3
e
r
Q
l
6
b
12
b
5
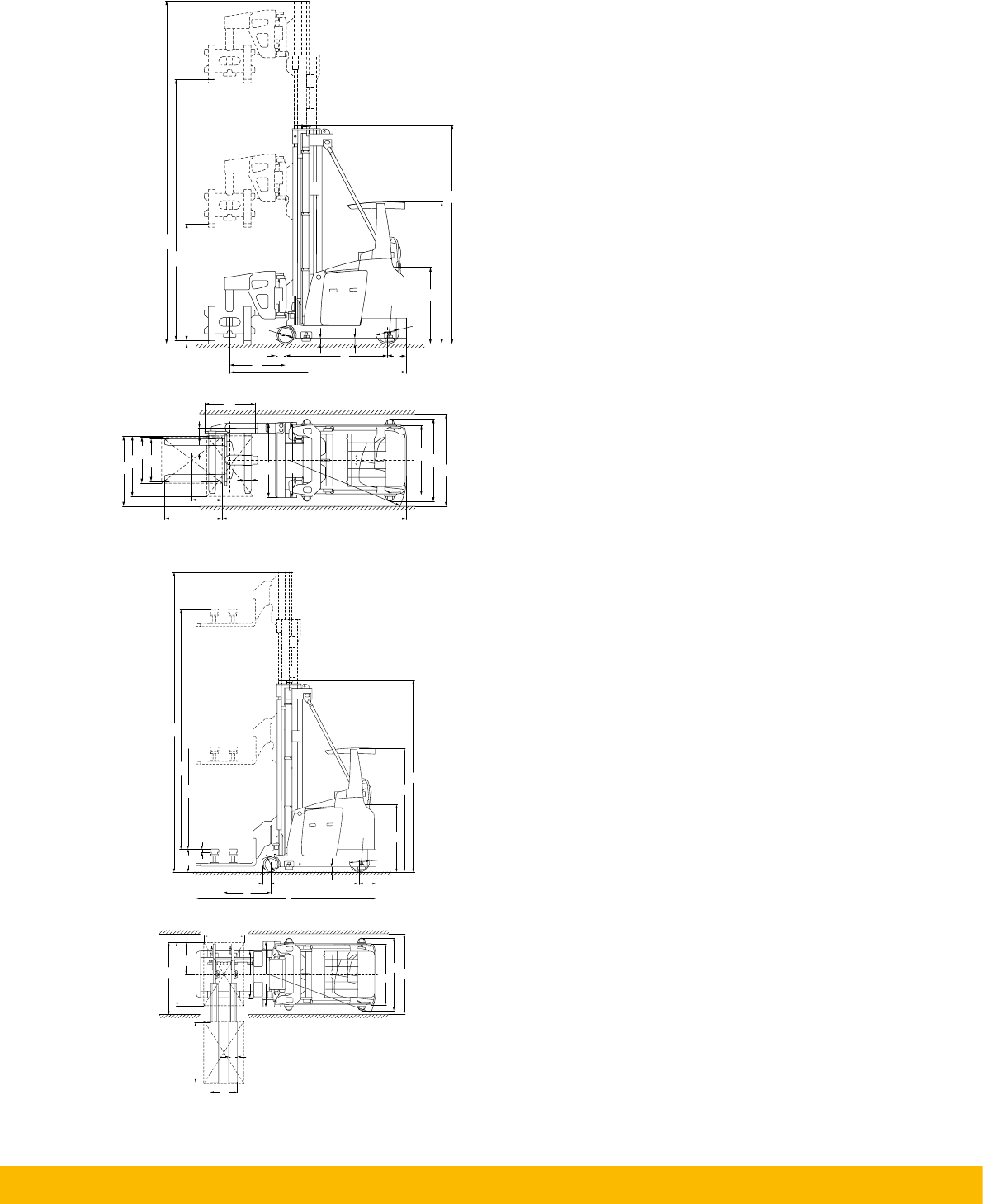
Pivot/traverse fork
ETX 513/ 515
h
4
h
3
h
2
s
h
13
l
8
b
8
b
12
l
6
l
b
e
b
3
b
2
Wa
b
1
b
6
Ast
b
7
l
1
x
y
m
1
m
2
z
d
1
d
2
h
7
h
8
h
1
telescopic fork
ETX 513/ 515