Technical Specifications

1 Door / 2 Drawer Vanity
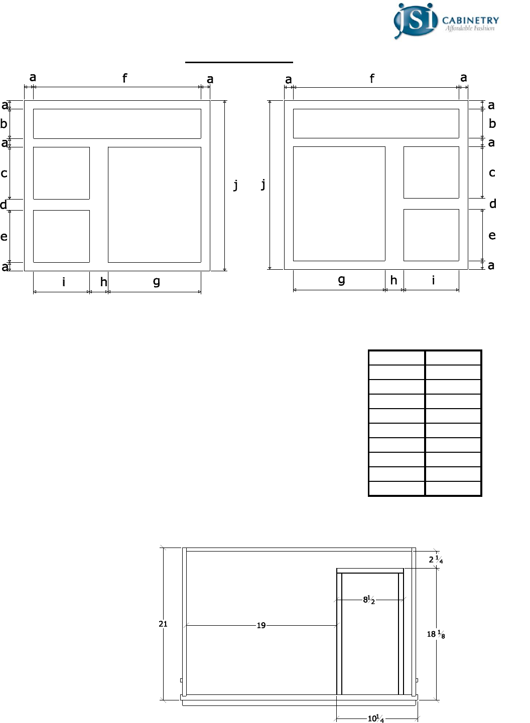
a
1
1
/
2
"
Door Opening: 15"W x 20
11
/
32
"H
b
5
5
/
32
"
Drawer Inner Dimensions: 7
1
/
8
"W x 16
3
/
4
"D x 7"H
c
9
1
/
16
"
Drawer Outer Dimensions: 8
7
/
16
"W x 18
1
/
8
"D x 7
3
/
4
"H
d
2"
Door Size: 17
1
/
2
"W x 22
1
/
4
"H
e
9
9
/
32
"
Drawer Head Size: 11
1
/
2
"W x 11"H
f
27"
False Drawer Head Size: 29
1
/
2
"W x 6
1
/
2
"H
g
15"
Cabinet Bottom Panel: 28
7
/
8
"W x 20"D x
3
/
8
"T
h
3"
Toe kick: 30"W x 4
1
/
2
"H x
1
/
2
"T
i
9"
j
30"
Top drawer is a false, non-working drawer
Premier V3021D
V3021D-L
V3021D-R
Page 340

Summary of content (1 pages)