Operation Manual
CN1
J4007
J207
J4016
J4001 J4001
TB4101
J4048
J4048
J4303
M
U
V
W
DC24V
DC250V
250V CNT
S701
100
200
NFB70
1
+24V
P+12V
PB7
PB8
PB1 P+12V
PB2 +48V
PB3 +5V
PB4 +3.3V
PB5 ±12V
+24V
P+12V
+48V
+5V
+3.3V
±12V
U
V
W
U
V
U0
V0
W0
PWRALM
PSMON
TX/STBY
PS(POWER On/Off)
+24V
P+12V
+48V
+5V
+3.3V
±12V
+48V
PS
PWRALM
P+12V
+24V
PWRALM
TX/STBY
PS
P+12V
+5V
+3.3V
±12V
+5V
+3.3V
±12V
+5V
+3.3V
+5V
+3.3V
J3101
TB701
TB701
TB701
TB701
TB701
TB701
J701
J701
J3
J3
J3
J4
J2
J2
J2
J1
J2
J1
J2
J1
J2
U
V
AC100/110V
AC220/230V
U1/TB202
V1/TB202
W1/TB202
U0/TB202
V0/TB202
W0/TB202
+48V
TB203
+5V
+12V
±15V
U1/TB102
V1/TB102
W1/TB102
S1
B101
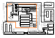
INTERSWITCH CIRCUIT
NQE-3141
(OPTION)
KEBOARD UNIT NCE-7721
CCK-901
MONTOR
NWZ-158
TERMINAL BOARD CQD-1949
NSK/LOG IF CIRCUIT
CMJ-462A
MOTHER BOARD CQC-1094
CPU CONTROL CIRCUIT CMC-
1218
RADAR SIGNAL PROCESSIN
CIRCUIT
CDC-1029
+3.3V On/Off
+5V On/Off
RELAY CIRCUIT
CSC-632
TRANSMITTER-RECEIVER UNIT (NTG-3028)
SCANNER (NKE-1089)DISPLAY UNIT (NCD-4263)
POWER UNIT (CBD-1661)
JAM-9923-7XA:100V/110V_1φ, 220V/230V_1φ, 220V/230V_3φ
Fig.117 Primary Power Supply Block Diagram of Radar,
Type JMA-9923-7XA/9XA
CONTROL
CIRCUIT
INSUPUTVOLTAG
E
SELECTION
POWER SUPLAY
CBD-1645
TB701
JAM-9923-9XA: 220V/230V_3φ
SFA SWITCHI










