Installation Instructions
D.
F.
E.
C.
A.
B.
OR
OR
Assembly
Instructions
Drill (3/32") • Perceuse (3/32") • Taladro (3/32")
Phillips Screw Driver • Tournevis Phillips • Destornillador Phillips
Fine Tooth Saw (optional) • Scie à dents fines (optionnelle) • Sierra de dientes finos (opcional)
Flat Head Screw Driver • Tournevis à tête plate • Destornillador de cabeza plana
Tape Measure • Ruban à mesurer • Cinta métrica
Spade Bit (7/8") • Partie en angle (7/8") • Broca con punta de lanza (7/8")
Tools Required • Outils requis • Herramientas requeridos
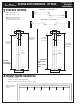
CONTENTS 2-Door 3-Door
A. Track 1 1
B. Carrier A Offsets 2 2
C. Carrier B Offsets 2 4
D. Pull 2 3
E. #8 x 3/4" Phillips Pan Head Screw 13 26
F. #8 x 1-1/4" Phillips Pan Head Screw 7 14
G. Door Guide 1 2
H. Door Stop 1 1
#310387_A (1213)
SLIDING DOOR HARDWARE - BY PASS
R-BYP-50 • For 2 or 3 doors up to 50 lbs. each with thickness of 3/4” to 1-3/8"
Instructions
d’assemblage
Instrucciones para
el ensamblaje
#310387_A (1213)
#310387_A (1213)
G.
H.
HERRAJE PARA PUERTA CORREDIZA - TIPO BY PASS
R-BYP-50• Para 2 o 3 puertasde hasta 22,6 kg cada una y de 1,9 cm à 3,5 cm de grosor
CONTENIDO 2-Puertas 3-Puertas
A. Caril 1 1
B. Vástagos del mecanismo de arrastre A 2 2
C. Vástagos del mecanismo de arrastre B 2 4
D. Tirador 2 3
E. #8 x 3/4" Tornillos Phillips 13 26
de cabeza chanfleada
CONTENIDO 2-Puertas 3-Puertas
F. #8 x 1-1/4" Tornillos Phillips 7 14
de cabeza chanfleada
G. Guía de la puerta 1 2
H. Tope de la puerta 1 1
QUINCAILLERIE POUR PORTE COULISSANTE – BY PASS
R-BYP-50 • Pour 2 à 3 portes jusqu'à 22,6 kg chacune d'une épasseur de 1,9 cm à 3,5 cm
CONTENU 2-Portes 3-Portes
A. Rail 1 1
B. Contrebalancements de partie portante A 2 2
C. Contrebalancements de partie portante B 2 4
D. Tirer 2 3
E. #8 x 3/4" Vis à tête Phillips 13 26
CONTENU 2-Portes 3-Portes
F. #8 x 1-1/4" Vis à tête Phillips 7 14
G. Guide de Porte 1 2
H. Buttoir de porte 1 1




