Use and Care Manual

8
JCT-5670 Pneumatic Drill
Lubrication
Use a light oil containing rust inhibitors, such as
SAE #10. Many JET air tools have integral oil
reservoirs, which should be kept filled when in-line
oilers are not used.
If greasing is required, use a grease that is highly
water resistant for front case components on air
impact wrenches, grinders and sanders.
Recycling
Protect the environment. Your tool contains
materials which can be recovered or recycled.
When its useful life has expired, please leave tool
at a specialized facility.
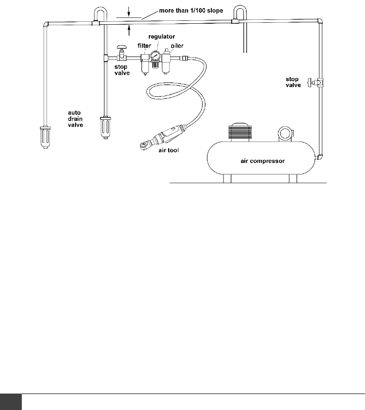
Figure 2
Recommended arrangement of air piping and air line system