Technical Specifications

SPECIFICATION SHEET
Architect
Engineer
Contractor
Submitted by Date
Location
Project
REMARKS QTY. REFERENCE
Illusion
MEDICINE CABINET
FEATURES/TYPICAL SPECIFICATIONS
• Recess mount installation
• Wall Opening/Rough-in Dimensions: 12” x 34¼” x 3½”
• Formed and welded flush design steel housing (WB/ST)
• 22 gauge steel with white, heat cured, acrylic paint
finish
• Frameless Mirror door
• 1/8” thick float glass mirror door front with polished
edges (POL1)
• 22 gauge steel door back with white, heat cured,
acrylic paint finish
• 90° concealed hinge
riveted to the door back and mechanically
fastened to the cabinet body (HG05) (2 typical)
•
Spring-loaded, magnetic touch latch fastened on cabinet body aligns
to a stainless steel striker plate on the door back (1 typical)
• Reversible for left-hand or right-hand door swing
• 26 gauge galvanized steel shelves with white, heat cured,
enamel paint finish, adjustable (3 typical)
• Aluminum shelf brackets (3 left & 3 right typical)
• Mounting hardware included
• Standard Pallet Quantity of 32 units
S639BC_N
Finishes:
Housing: PT01— Basic White
Mirror: POL1— Polished Edge
Frame: Frameless
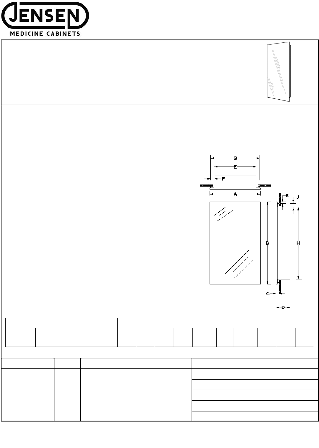
Dimensions In Inches
Model # Description A B C D E F G H J K
639BC MEDCAB 1DR 13X36 FMLS WB/ST 13 36 ⅜ 3⅞ 11-7/16 ⅝ 12-11/16 33¾ ⅝ ½
* All models and material specifications are subject to change or withdrawal without notice.
Rangaire Manufacturing Company, LP * 501 S. Wilhite Street, Cleburne, TX 76031
(1-800-325-8351) * www.rangairemfg.com

