Technical Specifications

SPECIFICATION SHEET
Architect
Engineer
Contractor
Submitted by Date
Location
Project
REMARKS QTY. REFERENCE
Galena
MEDICINE CABINET
FEATURES/TYPICAL SPECIFICATIONS
• Recess mount installation
• Wall Opening/Rough-in Dimensions: 14” x 18” x 3½”
• Formed and welded steel housing (WB/SS)
• 23 gauge stainless steel
• Frameless Mirror door
• 1/8” thick float glass mirror door front with 1/2” beveled
edges
• 24 gauge stainless steel door back
• 16” piano hinge welded to the door back and mechanically
fastened to the cabinet body (HG01) (1 typical)
• Magnetic catch in cabinet body flange aligns to a stainless steel
striker plate on the door back (1 typical)
• Reversible for left-hand or right-hand door swing
• 5/32” thick glass shelves, adjustable (ADJ) (2 typical)
• Installation hardware included
• Standard Pallet Quantity of 42 units
S1447_B
Finishes:
Housing: SS4 - Brushed Stainless Steel
Mirror: 1/2 BVL-1/2” Bevel Edge
Frame: Frameless
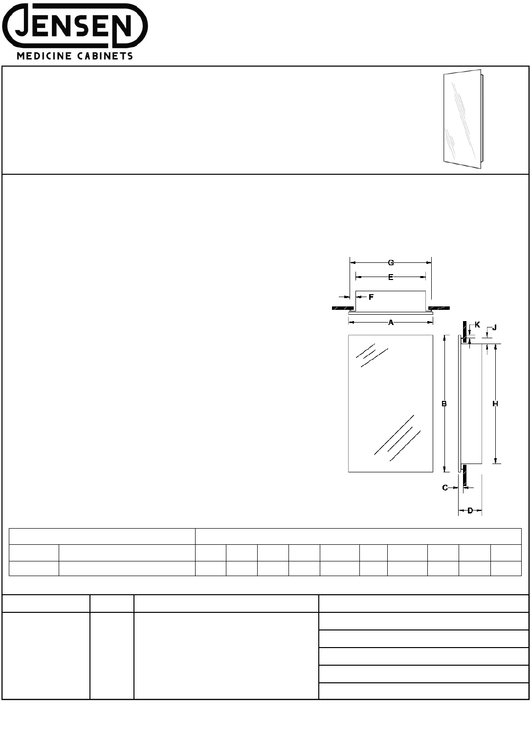
Dimensions In Inches
Model # Description A B C D E F G H J K
1447 MEDCAB 1DR 16X20 FMLS WB/SS 16 20 1½ 4½ 13½ 1 15½ 17½ 1 ¼
* All models and material specifications are subject to change or withdrawal without notice.
Rangaire Manufacturing Company, LP * 501 S. Wilhite Street, Cleburne, TX 76031
(1-800-325-8351) * www.rangairemfg.com

