Technical Specifications

SPECIFICATION SHEET
Architect
Engineer
Contractor
Submitted by Date
Location
Project
REMARKS QTY. REFERENCE
Focus
MEDICINE CABINET
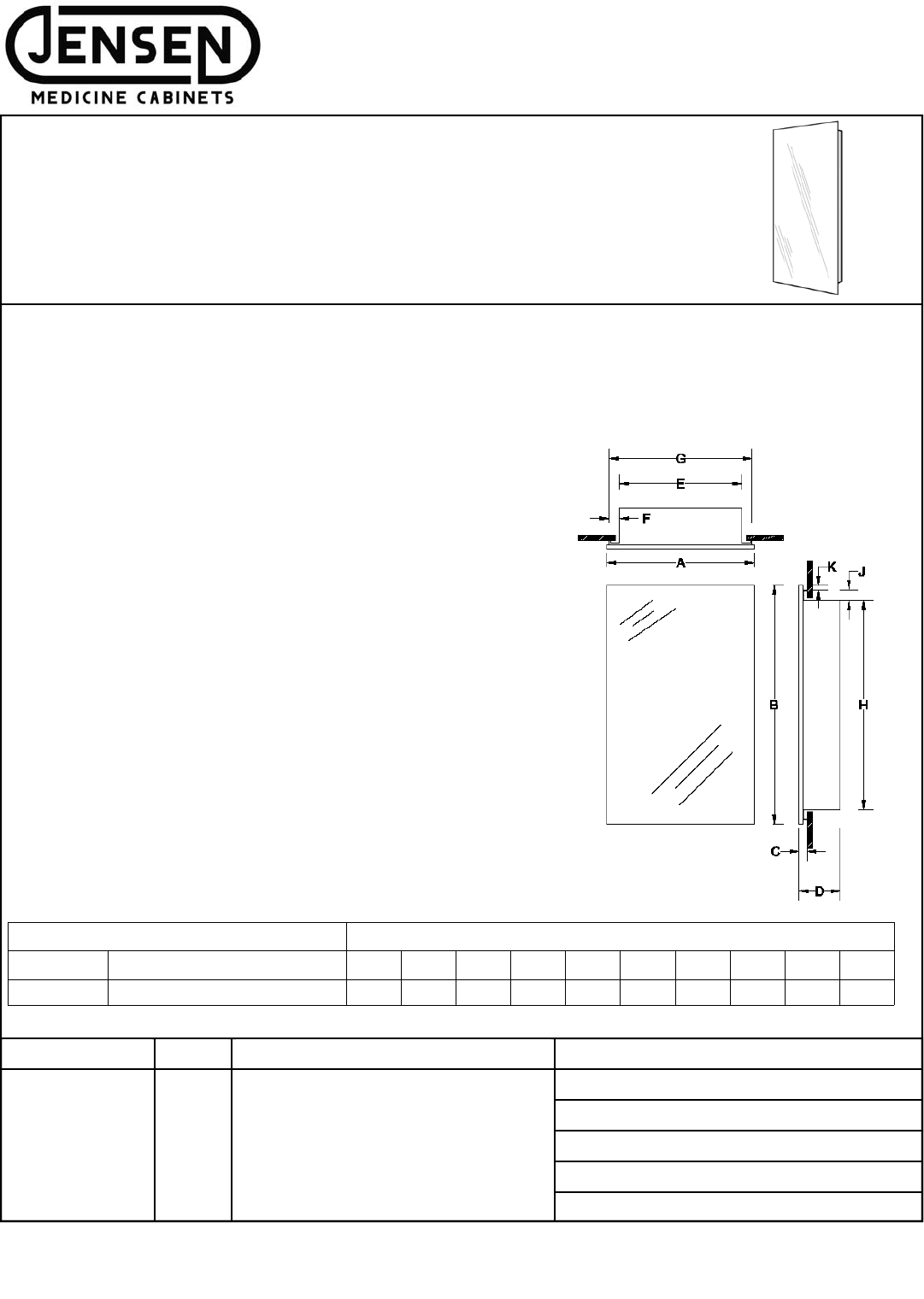
FEATURES/TYPICAL SPECIFICATIONS
• Recess Mount Installation
• Wall Opening/Rough-in Dimensions: 14” x 23¾” x 3½”
• One piece drawn steel housing (HY/ST)
• 26 gauge steel with white, heat cured, acrylic paint finish
• Frameless mirror door
• 1/8” float glass mirror door front with polished
edges, 4 sides (POL1)
• 26 gauge steel door back with white, heat cured, acrylic
paint finish
• 16” piano hinge welded to the door and mechanically fastened to
the cabinet body (HG01) (1 typical)
• Magnetic catch in cabinet body flange aligns to stainless steel
striker plate on the door (1 typical)
• Reversible for left-hand or right-hand door swing
• 26 gauge galvanized steel shelves with white, heat cured, enamel
paint finish, adjustable (ADJ) (2 typical)
• Mounting hardware included
• Standard Pallet Quantity of 42 units
S1438_A
Finishes:
Housing: PT01— Basic White
Mirror: POL1—Polished Edge
Frame: Frameless
Dimensions In Inches
Model # Description A B C D E F G H J K
1438 MEDCAB 1DR 16X26 FMLS HY/ST 16 26 1 4½ 13½ 1 15½ 23¼ 1 ⅜
* All models and material specifications are subject to change or withdrawal without notice.
Rangaire Manufacturing Company, LP * 501 S. Wilhite Street, Cleburne, TX 76031
(1-800-325-8351) * www.rangairemfg.com

