Dimension Guide

JENN-AIR
®
DETAILED PLANNING DIMENSIONS
2 of 2
8994 dZw217
IMPORTANT: Dimensional specifications are provided for planning purposes only.
Do not make any cutouts based on this information. Refer to the Installation Guide before
selecting cabinetry, verifying electrical/gas connections, making cutouts or beginning installation.
All Jenn-Air
®
appliances are appropriately UL, CUL or CSA approved.
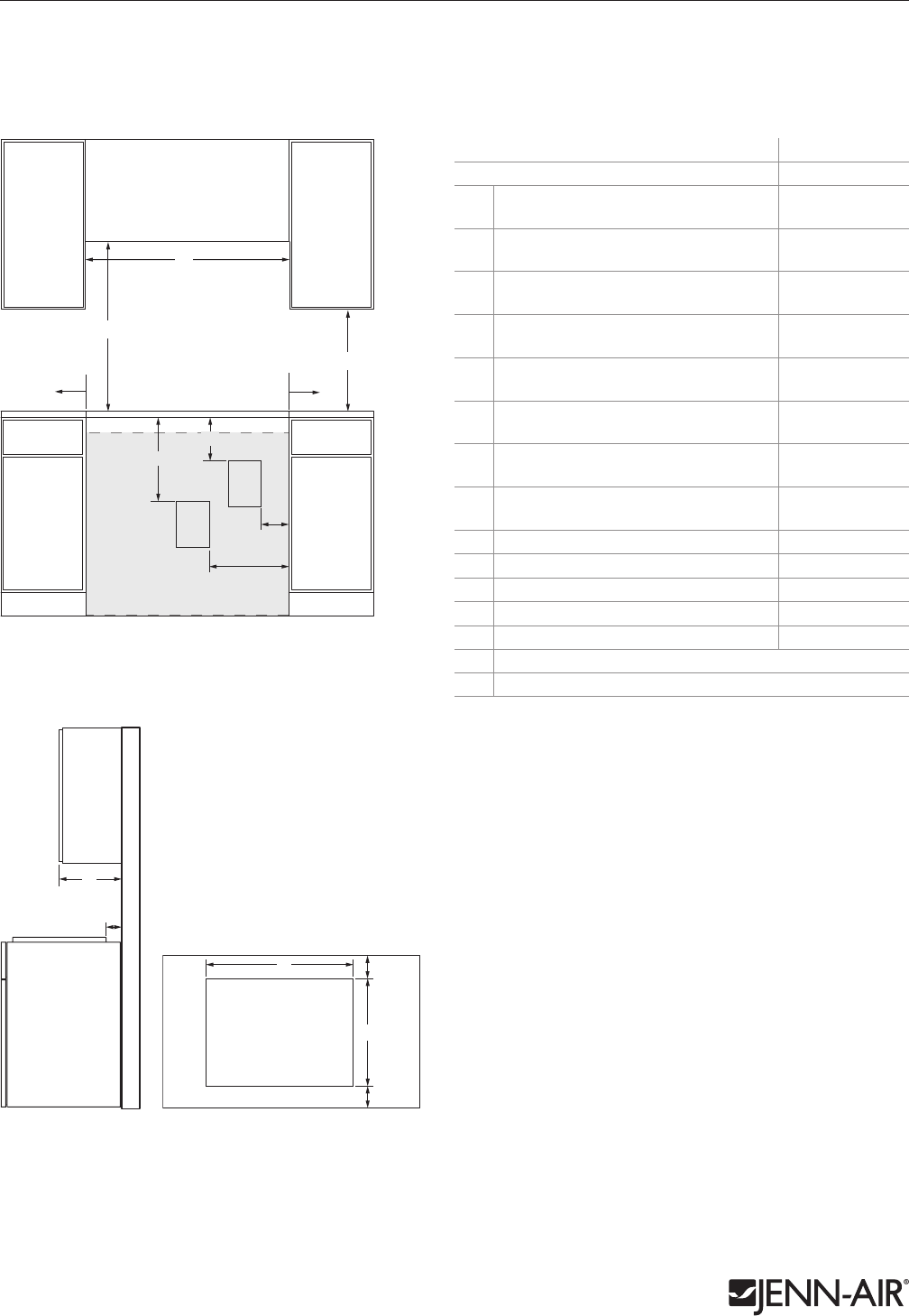
30" GAS COOKTOP
JGC3530G – 30" x 4
3
⁄16" x 21"
MODEL # JGC3530G
in cm
A
Width of combustible area above
cooking surface (min.)
30 76.2
B
Width from cooktop to fixed wall
or other combustible material (min.)
6 15.2
C
Width to outer edge of electrical outlet
(recommended)
9 22.9
D
Width to gas supply line location
(recommended)
12 30.5
E*
Height to bottom of uncovered wood or
metal cabinet above cooking surface (min.)
30 76.2
F
Height to bottom of uncovered wood
or metal cabinet (min.)
18 45.7
G
Height to top edge of electrical outlet
(recommended)
9 22.9
H
Height to gas supply line location
(recommended)
18 45.7
I
Depth of upper cabinet (recommended) 13 33.0
J
Depth from cutout to wall (min.) 2
5
⁄16 5.9
K
Width of cutout 29
3
⁄8 74.6
L
Depth of cutout 20
3
⁄8 51.8
M
Depth from cutout to front of countertop 2
5
⁄16 5.9
e
Recommended electrical access location
g
Recommended gas supply line location
* Dimension can be reduced by 6" (15.2 cm) when bottom of wood or metal
cabinet is covered by not less than
1
⁄4" (0.6 cm) flame retardant millboard
covered with not less than No. 28 MSG sheet metal, 0.015" (0.4 mm)
stainless steel, 0.024" (0.6 mm) aluminum or 0.020" (0.5 mm) copper.
If installing a hood or microwave hood combination above the cooktop,
follow the hood or microwave hood combination instructions for
dimensional clearances above the cooking surface.
OPENING/CLEARANCE DIMENSIONS
FRONT VIEW
TOP VIEW – CUTOUTSIDE VIEW
E*
F
A
B
B
C
D
e
g
G
H
I
K
M
L
J
Side
Cabinet
J
E*
F
A
B
B
C
D
e
g
G
H
I
K
M
L
J
Side
Cabinet
J
E*
F
A
B
B
C
D
e
g
G
H
I
K
M
L
J
Side
Cabinet
J
GAS REQUIREMENTS
Natural Gas
This cooktop is factory-set for use with natural gas.
LP Gas Conversion
Conversion must be done by a qualified service technician. To convert to
LP gas, use an LP gas conversion kit.
ELECTRICAL REQUIREMENTS
120 volt, 60 Hz, AC only, 15-amp fused, electrical circuit is required.
A time-delay fuse or dedicated circuit is recommended.
LOCATION REQUIREMENTS
• To ensure cooktop base clearance, cabinet side walls need to be wider
than the cutout.
• If cabinet has a drawer, allow a 4" (10.2 cm) minimum clearance
between countertop and top of drawer. Drawer depth may need to be
shortened to avoid interfering with the regulator.


