Installation Instructions
Table Of Contents

7
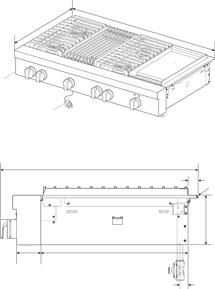
48" (121.9 cm) models
Side View of Cooktop
A
C
B
D
A. 27
1
/
8
" (68.9 cm)
B. 47
7
/
8
" (121.6 cm)
C. 3 prong grounding-type power supply cord
D. Model/serial/rating plate (located on the
underside of the cooktop burner base)
A
F
B
D
C
G
E
A. 27
3
/
8
" (69.5 cm)
B. 1
1
/
4
" (3.2 cm)
C. Island trim or optional backguard
D. 7
7
/
16
" (18.8 cm)
E. Gas inlet is located 1
7
/
8
" (4.8 cm) from
the back of the cooktop burner base and
4
7
/
8
" (12.4 cm) in from left-hand side of the
cooktop burner base.
F. 22" (55.9 cm)
G. 3
5
/
16
" (8.4 cm)
16-Jan-2019 04:15:35 EST | RELEASED
In some European factories the letter "W" of the part code mentioned herein will be automatically
replaced by the number "4000" (e.g. "W12345678" becomes "400012345678")










