Installation Instructions
Table Of Contents

22
Dimensions du produit
REMARQUE: Les caractéristiques de la table de cuisson peuvent varier.
Modèles de 30 po (76,2 cm)
Vue latérale de la table de cuisson
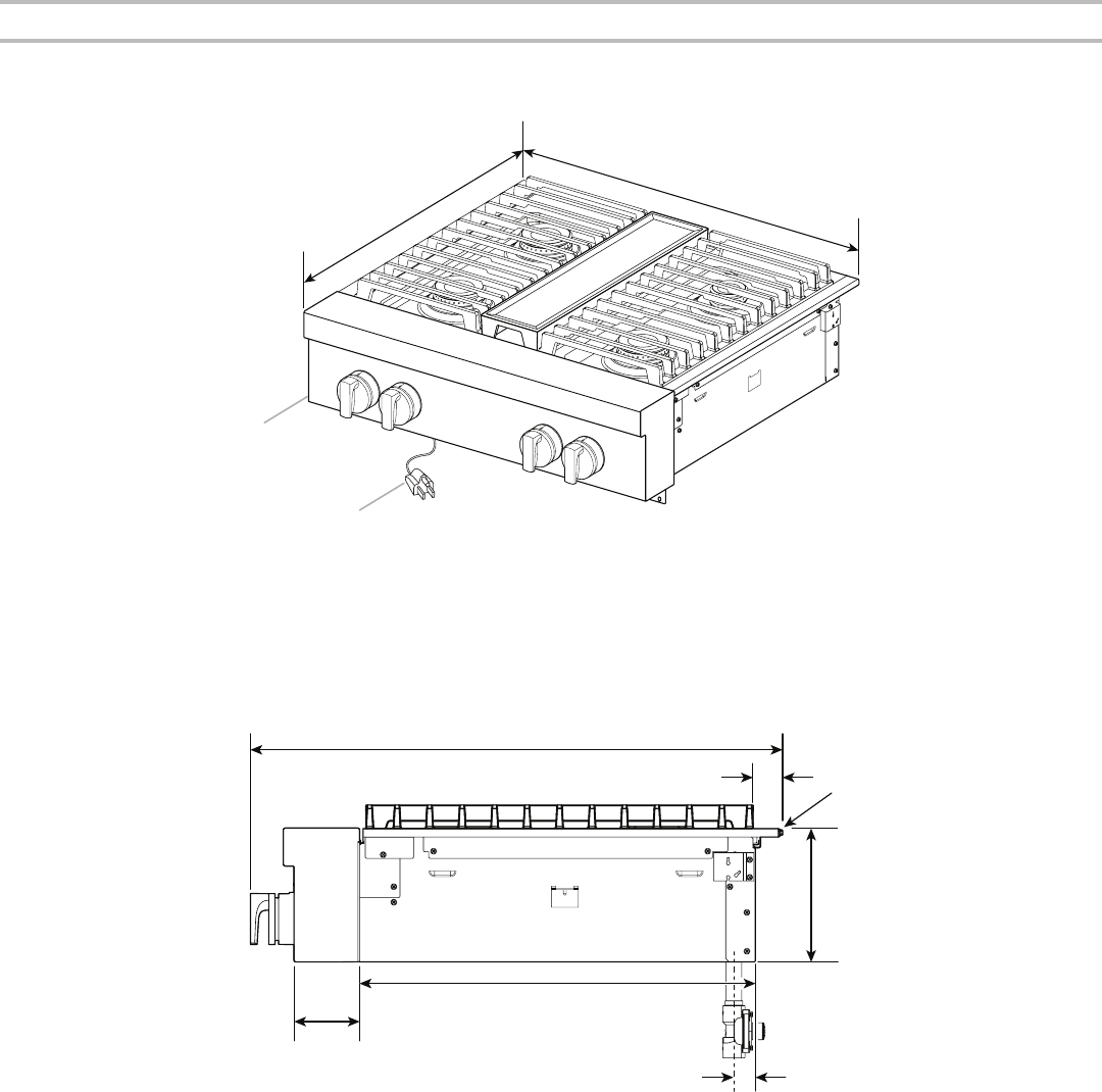
A
C
B
D
A. 27
1
/
8
po (68,9 cm)
B. 29
7
/
8
po (75,9 cm)
C. Cordon d’alimentation à 3 broches avec mise à
la terre
D. La plaque signalétique des numéros de modèle
et de série est située sur la face inférieure de la
base de brûleur de la table de cuisson
A
B
D
E
G
F
C
A. 27
3
/
8
po (69,5 cm)
B. 1
1
/
4
po (3,2 cm)
C. Garniture d’îlot ou dosseret facultatif
D. 7
7
/
16
po (18,8 cm)
E. L’entrée de gaz se trouve à 1
7
/
8
po (4,8 cm)
de l’arrière de la base du brûleur de la table
de cuisson et à 4
7
/
8
po (12,4 cm) du côté
intérieur gauche de la base du brûleur de la
table de cuisson.
F. 22 po (55,9 cm)
G. 3
5
/
16
po (8,4 cm)
16-Jan-2019 04:15:35 EST | RELEASED
In some European factories the letter "W" of the part code mentioned herein will be automatically
replaced by the number "4000" (e.g. "W12345678" becomes "400012345678")










