Panel Installation

JENNAIR
®
DETAILED PLANNING DIMENSIONS
3 of 3
IMPORTANT: Dimensional specifications are provided for planning purposes only.
Do not make any cutouts based on this information. Refer to the Installation or Use & Care Guide
before selecting cabinetry, verifying electrical/gas connections, making cutouts or beginning installation.
All JennAir
®
appliances are appropriately UL, CUL or CSA approved.
®/™ © 2018 JennAir. All rights reserved. JEN 25280-007.
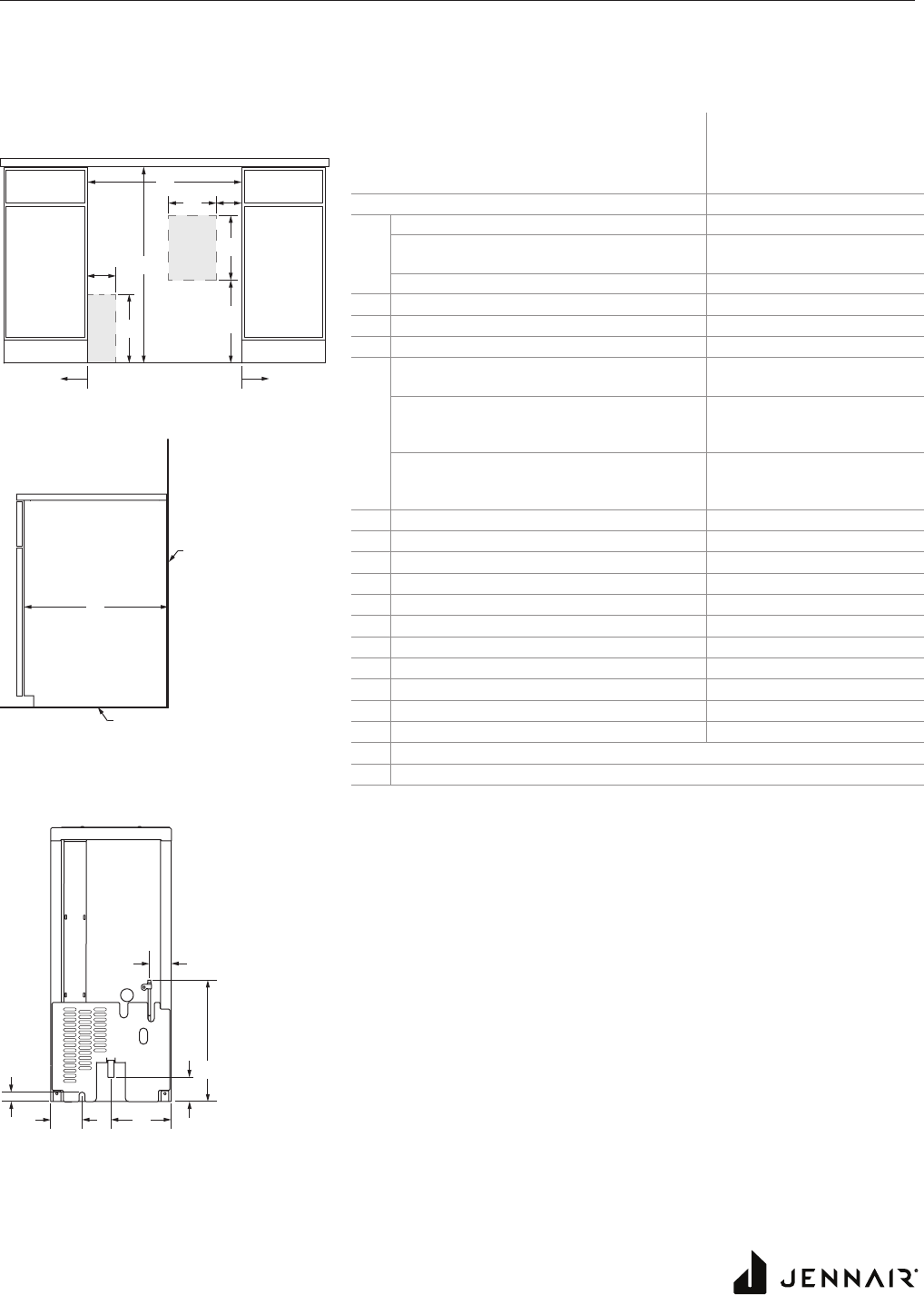
OPENING/CLEARANCE DIMENSIONS
FRONT VIEW
Floor
Wall
F
A
J
e
w
B
G
I
C
D
H
EE
K
M
O
N
P
L
BACK VIEW
15" ICE MACHINES WITH RISE
TM
OR NOIR
TM
PANEL KIT
JKRPL151HL/ JKRPR151HL/ JKRPL151HM/ JKRPR151HM – 14
7
⁄8" x 33
13
⁄16" x 24" (depth without handle)
MODEL #
JUIFX15H WITH JKRPL-
151HL, JKRPR151HL,
JKRPL151HM OR
JKRPR151HM PANEL KIT
in cm
A
Width (min.) 15 38.1
Width without hinge side spacer option
(min.)
15 38.1
Width with hinge side spacer option (min.) 15
3
⁄4* 40.0*
B
Width of outlet location 6 15.0
C
Outlet location – distance from side 1 2.5
D
Width of water connection location 3
1
⁄2 8.9
E
Minimum width from hinged side of ice
machine to fixed wall – door open 90°
2 5.1
Minimum width from hinged side of ice
machine
to fixed wall – door fully open 180°
13
1
⁄4 33.7
Minimum width from hinged side of ice
machine
to fixed wall – door fully open 118°
6
7
⁄8 17.4
F
Height (min.) 34 86.4
G
Height of outlet location 8 20.3
H
Height of water connection location 9 22.9
I
Outlet location – distance from bottom 12 30.5
J
Depth of cabinet (min.) 24 61.0
K
Water line location – distance from side 2
5
⁄8 6.7
L
Power supply – distance from side 3
7
⁄8 9.8
M
Drain hose – distance from side 7
3
⁄8 18.8
N
Power supply – distance from bottom 1
1
⁄4 3.2
O
Drain hose – distance from bottom 2
7
⁄8 7.3
P
Water line location – distance from bottom 14
1
⁄2 36.9
e
Recommended electrical connection location
w
Recommended water connection location
* Install
3
⁄4" (1.9 cm) front hinge-side spacer flush with face of adjacent cabinet
and
3
⁄4" (1.9 cm) back hinge-side spacer 6" (15.2 cm) from back wall.
ELECTRICAL REQUIREMENTS
115 volt, 60 Hz, AC only, 15- or 20-amp fused, grounded circuit is required.
A dedicated circuit is recommended. Use an outlet that cannot be turned off
by a switch. Do not use an extension cord.
WATER PRESSURE REQUIREMENTS
A cold water supply with water pressure between 30 and 120 psi (207 and
827 kPa) is required to operate the ice maker. Call a licensed, qualified plumber with any
questions about the water pressure.
Reverse Osmosis Water Supply
IMPORTANT: The use of a reverse osmosis system with this product is not recommended.
However if you do use reverse osmosis, follow these instructions.
IMPORTANT: The pressure of the water coming out of a reverse osmosis system going to the
water inlet valve of the ice machine needs to be between 30 and 120 psi (207 and 827 kPa).
If a reverse osmosis water filtration system is connected to the cold water supply, the water
pressure to the reverse osmosis system needs to be a minimum of
40 to 60 psi (276 to 414 kPa).
Floor
Wall
F
A
J
e
w
B
G
I
C
D
H
EE
K
M
O
N
P
L
Floor
Back Wall
F
A
J
e
w
B
G
I
C
D
H
EE
K
M
O
N
P
L
SIDE VIEW