User's Manual

26
Autres critères à respecter pour une installation en résidence
mobile :
■ Dans le cas de l’installation de cette cuisinière dans une
résidence mobile, la cuisinière doit être fixée au plancher
durant tout déplacement du véhicule. Toute méthode de
fixation de la cuisinière est adéquate dans la mesure où elle
satisfait aux critères des normes mentionnées ci-dessus.
■ Pour une installation en résidence mobile, un câble ou cordon
d’alimentation à quatre fils doit être utilisé. Le câblage de
l’appareil devra être révisé. Voir la section “Raccordement
électrique”.
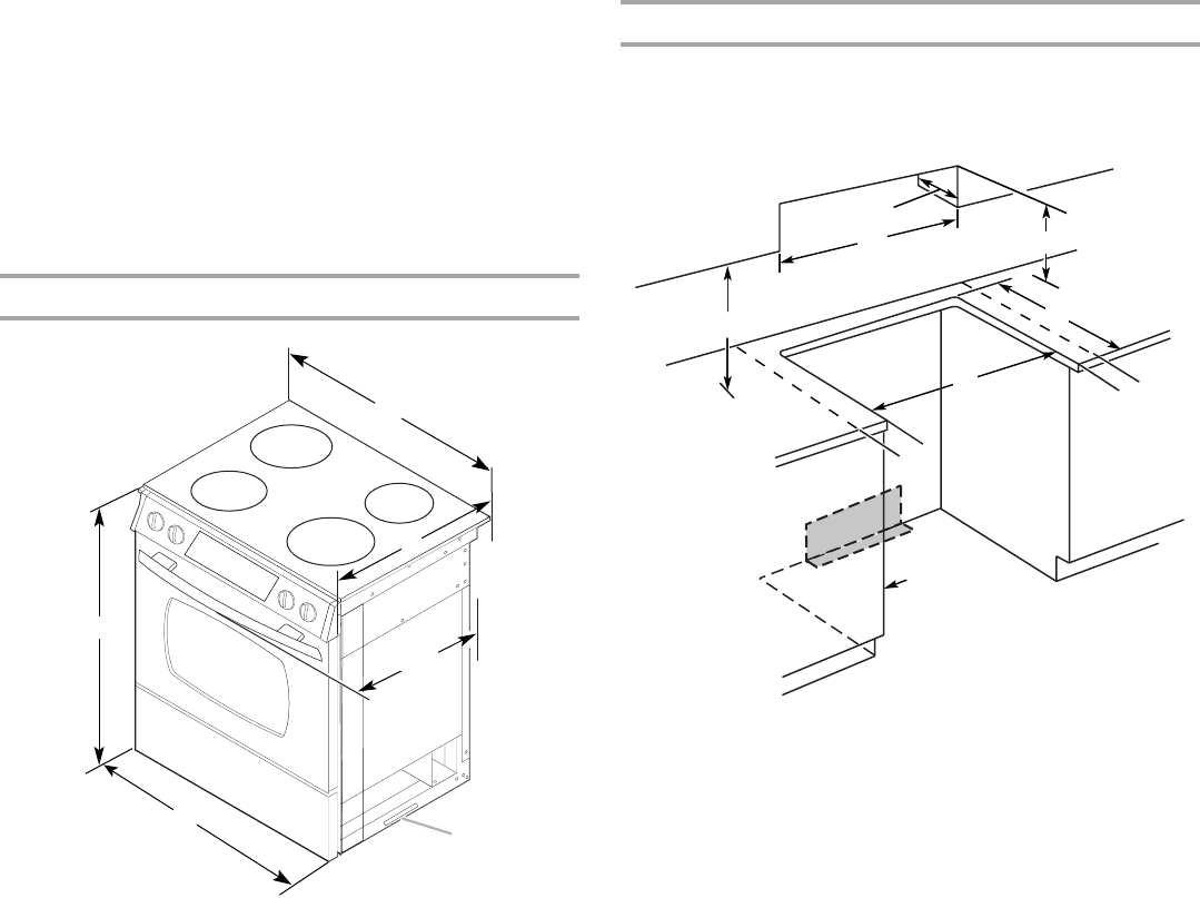
Dimensions du produit
*La cuisinière peut être surélevée d’environ 1" (2,5 cm) en
ajustant les pieds de nivellement.
**Dans le cas d’une installation entre des placards de
24" (61 cm) avec plan de travail de 25" (63,5 cm), l’avant
de la porte du four dépassera les placards inférieurs de
24" (61 cm) d'une distance de 2¹⁄₂" (6,4 cm).
Dimensions du placard
Les dimensions de l’espace entre les placards correspondent à
une installation entre des placards de 24" (61,0 cm) de
profondeur, avec plan de travail de 25" (64 cm) de profondeur et
de 36" (91,4 cm) de hauteur.
REMARQUE : Distance de séparation minimale de 24" (61 cm)
lorsque le fond d’un placard de bois ou de métal est protégé par
une planche ignifugée d’au moins ¹⁄₄" (0,64 cm) recouverte d’une
feuille métallique d’épaisseur égale ou supérieure à : acier calibre
28 MSG, acier inoxydable 0,015" (0,4 mm), aluminium
0,024" (0,6 mm), ou cuivre 0,020" (0,5 mm).
Distance de séparation minimale de 30" (76,2 cm) ou plus entre le
dessus de la table de cuisson et le fond d’un placard de bois ou
de métal non protégé.
A. 30³⁄₄" (78,1 cm)
B. Hauteur jusqu’à la partie
inférieure du bord de la
table de cuisson avec les
pieds de nivellement
complètement rétractés :
35³⁄₄" (90,8 cm)*
C. Plaque signalétique (située
en bas à droite du châssis
du four)
D. 29⁷⁄₈" (75,9 cm)
E. 29¹⁄₁₆" (73,8 cm) de la
poignée au support à
l’arrière de la cuisinière**
F. 23½" (59,7 cm) du coin du
plan de travail à l’arrière
de la table de cuisson
C
B*
D
E**
F
A
A. Profondeur des placards
supérieurs : 13" (33 cm)
B. Largeur de l’ouverture
30" (76,2 cm) min.
C. Pour le dégagement vertical
minimal de la table de
cuisson, voir la REMARQUE*.
D. Profondeur d'ouverture de
23¹⁄₄" (59,1 cm)
E. Largeur de l’ouverture
30" (76,2 cm) min.
F. Boîtier de connexion :
5,5" (14 cm) min. de l’un des
deux placards, 10" (25,4 cm)
max. du plancher. La prise
doit être de type encastré.
Aucun élément situé dans la
zone ombrée ne doit
dépasser de plus de
2" (5,1 cm) du mur, sinon il
sera impossible de glisser la
cuisinière jusqu’au fond.
G. La porte ou charnière du
placard ne doit pas dépasser
à l’intérieur de l’ouverture.
H. 18" (45,7 cm)
I. Dégagement de 3" (7,6 cm)
min. entre les deux côtés de
la cuisinière et les parois
latérales ou d’autres
matériaux combustibles.
A
D
E
F
G
H
B
I
I
C










