Specification

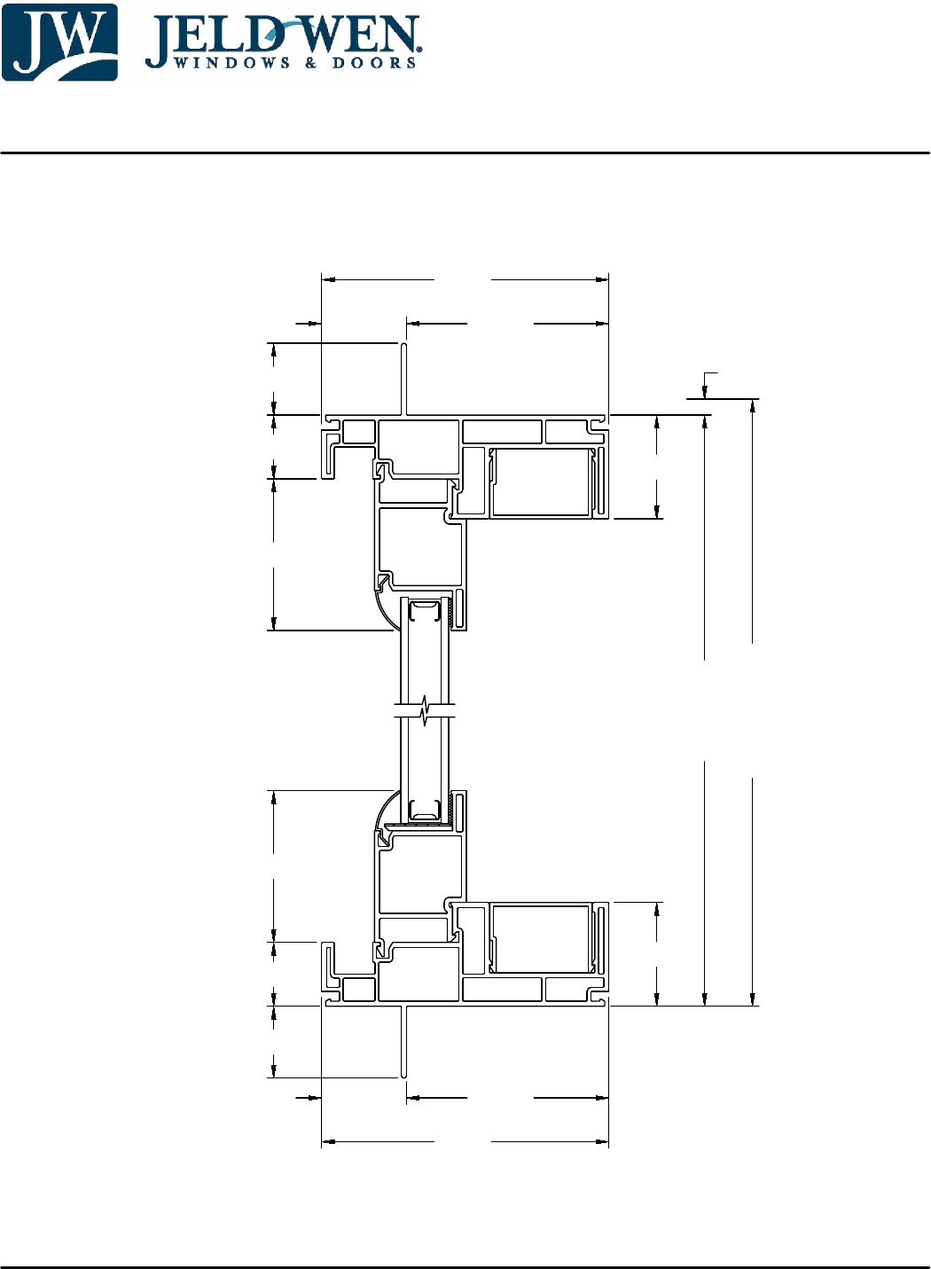
Daylight Opening
2 3/8"
1"
2 3/8"
1"
Frame Size
Rough Opening
1/4"
4 1/2"
1 5/16" 3 3/16"
1 5/8"
1 1/8"
1 1/8"
1 5/8"
4 1/2"
1 5/16" 3 3/16"
SIDELITE - VERTICAL SECTION
Architectural Design Manual
September 2017
Product specifications may change without notice.
Questions? Consult JELD-WEN customer service.
BUILDERS VINYL
VINYL PATIO DOOR
SLIDING PATIO DOOR
Scale: CUSTOM
9