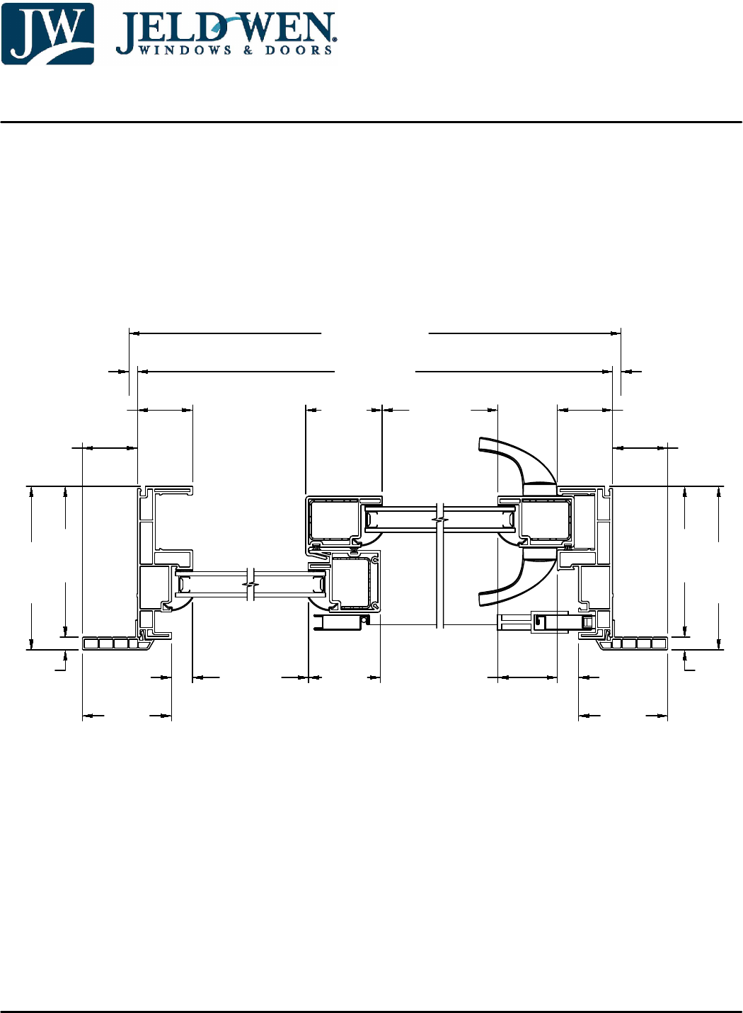
Specification

Daylight
Opening
Frame Size
Rough Opening
Daylight
Opening
1/4" 1/4"
2 1/4" 1 3/4" 1 5/8"
5/8"
4 13/16"
3/8"
4 7/16"
4 13/16"
3/8"
4 7/16"
1 5/8"
2 1/8" 1 3/4" 5/8"
1 5/8" 1 5/8"
2 5/8" 2 5/8"
Scale: NTS
8
FLUSH FIN - HORIZONTAL SECTION
Architectural Design Manual
September 2017
Product specifications may change without notice.
Questions? Consult JELD-WEN customer service.
BUILDERS VINYL
VINYL PATIO DOOR
SLIDING PATIO DOOR