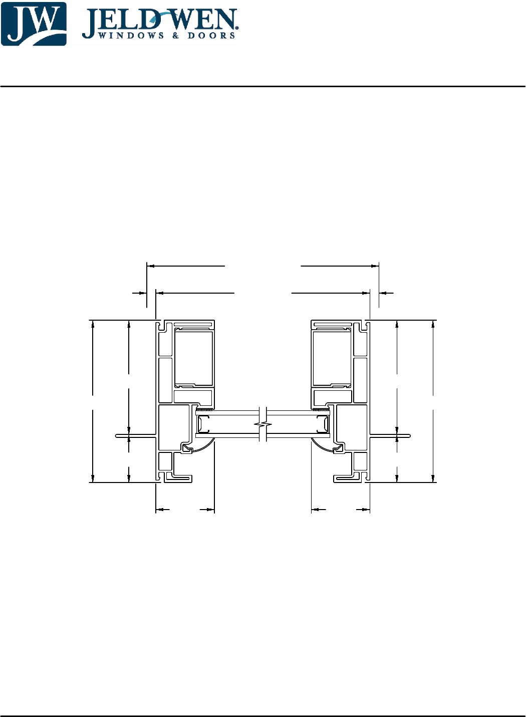
Specification

Daylight Opening
Frame Size
Rough Opening
1/4" 1/4"
1 5/8" 1 5/8"
4 1/2"
1 5/16"
3 3/16"
4 1/2"
1 5/16"
3 3/16"
SIDELITE - HORIZONTAL SECTION
Architectural Design Manual
September 2017
Product specifications may change without notice.
Questions? Consult JELD-WEN customer service.
BUILDERS VINYL
VINYL PATIO DOOR
SLIDING PATIO DOOR
Scale: 6" = 1' - 0"
10










