Specification Sheet
©2016 Jacuzzi Luxury Bath
●
For additional information call Customer Service 800-288-4002
●
www.jacuzzi.com/baths/support/specs-and-manuals/
Technical Specications
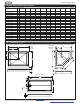
KEY DIMENSIONS* [NOTE: The overall dimensions are nominal with a tolerance of +0 and -.25" (6mm).]
Cayman
®
Shower Base Specications
DESCRIPTION NO. MKT. PRODUCT
CODE (MPG)
A B C D E F G H J AVG PROD
WEIGHT
(LBS)
Cayman
®
3636 Center Drain S344 CAY3636SCX XXX ( ) 36" (915mm) 36" (915mm) 17-1/2" (445mm) 18" (458mm) 6" (153mm) --- --- --- --- 43lbs (20kg)
Cayman
®
3642 Center Drain T354 CAY3642SCX XXX ( ) 36" (915mm) 42" (1067mm) 20-1/4" (515mm) 18" (458mm) 6" (153mm) --- --- --- --- 47lbs (22kg)
Cayman
®
4234 Center Drain T232 CAY4234SCX XXX ( ) 42" (1067mm) 34" (864mm) 16-1/2" (420mm) 21" (534mm) 6" (153mm) --- --- --- --- 45lbs (21kg)
Cayman
®
4236 Center Drain T362 CAY4236SCX XXX ( ) 42" (1067mm) 36" (915mm) 17-1/2" (445mm) 21" (534mm) 6" (153mm) --- --- --- --- 47lbs (22kg)
Cayman
®
4242 Center Drain S348 CAY4242SCX XXX ( ) 42" (1067mm) 42" (1067mm) 20-1/4" (515mm) 21" (534mm) 6" (153mm) --- --- --- --- 57lbs (26kg)
Cayman
®
4248 Center Drain T366 CAY4248SCX XXX ( ) 42" (1067mm) 48" (1220mm) 23-1/4" (591mm) 21" (534mm) 6" (153mm) --- --- --- --- 65lbs (30kg)
Cayman
®
4832 Center Drain T374 CAY4832SCX XXX ( ) 48" (1220mm) 32" (813mm) 15" (381mm) 24" (610mm) 6" (153mm) --- --- --- --- 47lbs (22kg)
Cayman
®
4834 Center Drain S356 CAY4834SCX XXX ( ) 48" (1220mm) 34" (864mm) 16-1/2" (420mm) 24" (610mm) 6" (153mm) --- --- --- --- 51-1/2lbs (24kg)
Cayman
®
4836 Center Drain PR20 CAY4836SCX XXX ( ) 48" (1220mm) 36" (915mm) 17-3/32" (435mm) 24" (610mm) 6" (153mm) --- --- --- --- 55lbs (25kg)
Cayman
®
4848 Center Drain S364 CAY4848SCX XXX ( ) 48" (1220mm) 48" (1220mm) 23-1/4" (591mm) 24" (610mm) 6" (153mm) --- --- --- --- 70lbs (32kg)
Cayman
®
6034 Center Drain T228 CAY6034SCX XXX ( ) 60" (1524mm) 34" (864mm) 16-1/2" (420mm) 30" (762mm) 6" (153mm) --- --- --- --- 68lbs (31kg)
Cayman
®
6036 Center Drain S368 CAY6036SCX XXX ( ) 60" (1524mm) 36" (915mm) 17-1/2" (445mm) 30" (762mm) 6" (153mm) --- --- --- --- 70lbs (32kg)
Cayman
®
6042 Center Drain T370 CAY6042SCX XXX ( ) 60" (1524mm) 42" (1067mm) 20-1/4" (515mm) 30" (762mm) 6" (153mm) --- --- --- --- 82lbs (38kg)
Cayman
®
3838 Neo Angle Center Drain T358 CAY3838SNX XXX ( ) 38" (966mm) 38" (966mm) 14-1/2" (369mm) 14-1/2" (153mm) 6" (153mm) 29" (737mm) 17.38" (442mm) 17.38" (442mm) 39" (991mm) 46lbs (21kg)
Cayman
®
4242 Neo Angle Center Drain S352 CAY4242SNX XXX ( ) 42" (1067mm) 42" (1067mm) 16-1/16" (408mm) 16-1/16" (408mm) 6" (153mm) 29" (737mm) 21-1/2" (547mm) 21-1/2" (547mm) 45" (1143mm) 50lbs (23kg)
Cayman
®
4848 Neo Angle Center Drain S360 CAY4848SNX XXX ( ) 48" (1220mm) 48" (1220mm) 16-1/4" (413mm) 16-1/4" (413mm) 6" (153mm) 29" (737mm) 27-1/2" (699mm) 27-1/2" (699mm) 53" (1347mm) 77lbs (35kg)
Cayman
®
6030 RH End Drain PR21 CAY6030SRXXXX( ) 60" (1524mm) 30" (762mm) 14-3/16" (361mm) 5-7/8" (150mm) 4.1" (105mm) --- --- --- --- 55lbs (25kg)
Cayman
®
6030 LH End Drain PR22 CAY6030SLXXXX( ) 60" (1524mm) 30" (762mm) 14-3/16" (361mm) 5-7/8" (150mm) 4.1" (105mm) --- --- --- --- 55lbs (25kg)
Cayman
®
6032 RH End Drain PR23 CAY6032SRXXXX( ) 60" (1524mm) 32" (813mm) 15-3/16" (386mm) 5-7/8" (150mm) 4.1" (105mm) --- --- --- --- 59lbs (27kg)
Cayman
®
6032 LH End Drain PR24 CAY6032SLXXXX( ) 60" (1524mm) 32" (813mm) 15-3/16" (386mm) 5-7/8" (150mm) 4.1" (105mm) --- --- --- --- 59lbs (27kg)
Center
Drain
Models
Neo Angle
Center Drain
Models
End Drain Models
A
C
B
D
E
D
C
A
B
F
G
J J
E
H
A
B
C
D
3 1/2"
E
LE69000 www.jacuzzi.com

