User guide

42
5.0 Parts
5.0 Parts
5.0 Parts
Chassis (Continued)
Item # Description  Part #  Qty.
14 3/8-16 Grade 5 Zinc Centerlock Hex Nut JM0001512 4
15 5/8 USS Flat Washer JM0003073 24
16 5/8-11 X 2 1/4 Grade 5 Zinc Hex Bolt JM0001493 12
17 1/2-13 X 1 3/4 Grade 5 Zinc Hex Bolt JM0002101 12
18 1/2 USS Flat Washer JM0003082 12
19 1/2-13 Grade 5 Zinc Centerlock Hex Nut JM0001511 12
20 3/8-16 X 1.0 Grade 8 Zinc Hex Bolt JM0001485 4
21 235-85-R16, 8 Bolt Wheel and Tire JM0009977 6
22 Wiring Bracket JM0002346 1
23 1.75ID X .25 Width X 2.0 OD Rubber Grommet JM0001477 7
24 Amber Round Light Assembly JM0001908 2
25 Amber Round Light  JM0001895 2
26 Round Light Grommet JM0001902 2
27 Red Round Light Assembly JM0001905 2
28 Red Round Light JM0001901 2
29 Round Light Grommet JM0001902 2
30 Red Oval Brake Light Assembly JM0001903 2
31 Red Oval Brake Light  JM0007114 2
32 Red Oval Brake Light Grommet JM0001897 2
33 Liscense Plate Holder-Not Shown (Optional) JM0010305 1
34 Brake Assembly (not shown) JM0016108 1
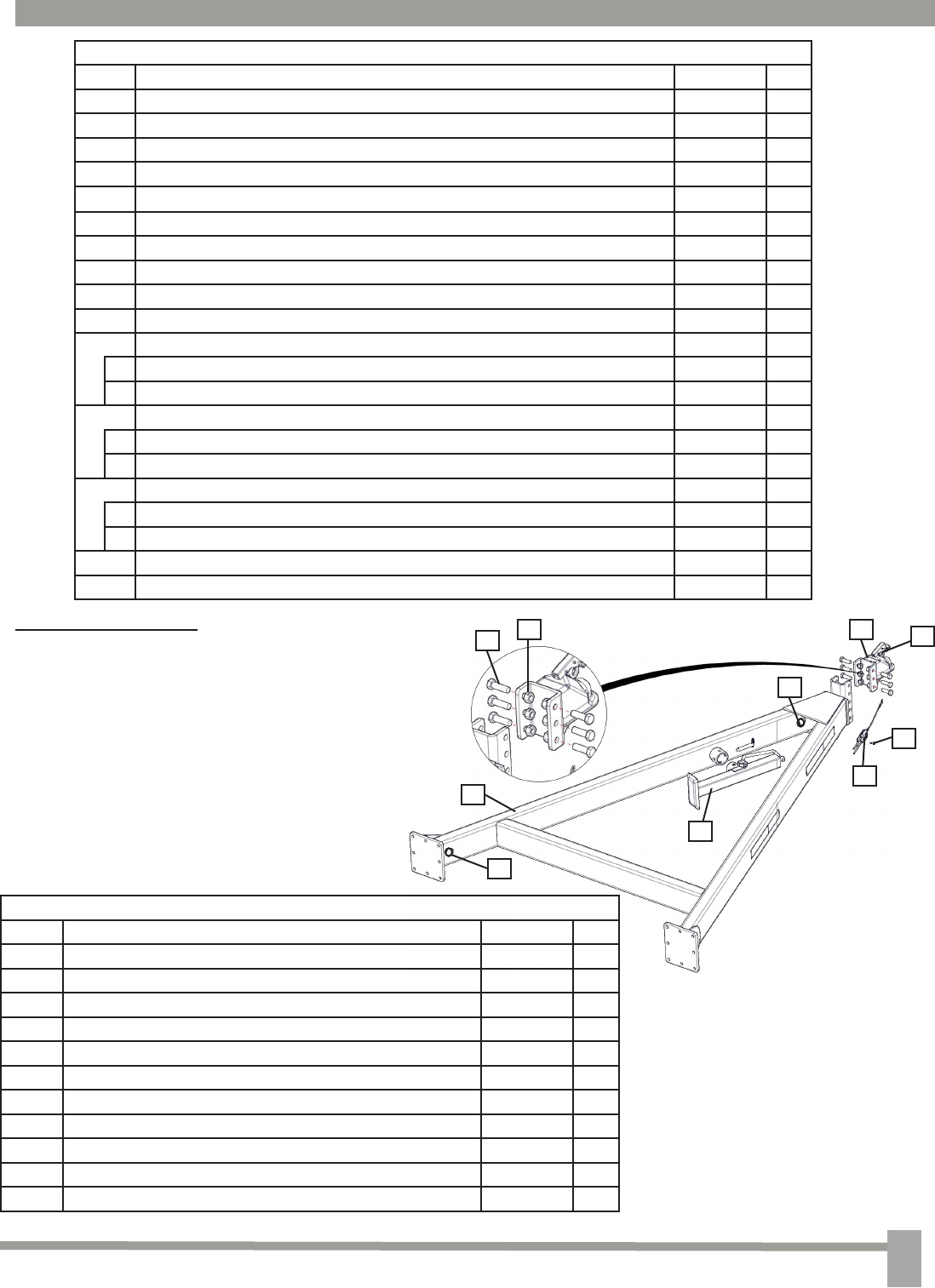
A-Frame
Item # Description  Part #  Qty.
1 A-Frame Weldment JM0002481 1
2 21,000lb Ball Coupling, 2 5/16 Dia. Ball  JM0001893 1
3 1/4 X 1 3/4 Lynch Pin JM0001478 1
4 5000 Series, 5000 lb Max Lift Jack Capacity Jack with Lynch Pin JM0001480 1
5 1.75ID X 1/4 GW X 2.0 GD JM0001477 2
6 5/8-11 X 2.0 Grade 8 Zinc Hex Bolt JM0002146 6
7 5/8-11 Grade 5 Zinc Centerlock Hex Nut JM0001771 6
8 1/4 X 3/4 Self Tapping Screw JM0001570 1
9 Breakaway Switch JM0001843 1
10 3" Lunette Eye-Not Shown (Optional) JM0009978 1
11 Safety Chains-Not Shown JM0015061 2
5.4 A-Frame Parts
1
2
3
4
5
5
6
7
8
9










