Specification Sheet

RECESSED CLEARANCE - BOARD EXTENDED
Minimum required space for the ironing board to lower
completely and swivel without hitting an obstacle.
RECESSED
MOUNT
SURFACE
MOUNT
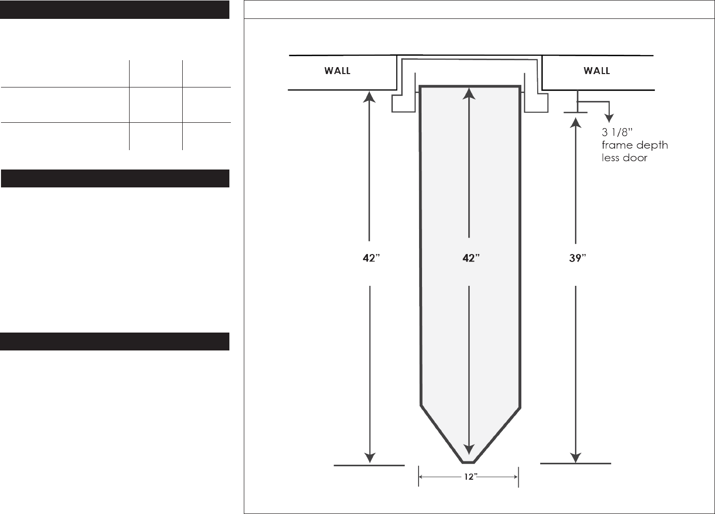
1. Clearance from Wall to
Tip of Board
42” 46”
2. Hinge Side Clearance for
180º Degree Door Swing
16” 16”
Swivel Clearance Requirements
For Further Review
1. Space required for board to come down flat
To ensure a flat and level ironing surface, be sure to that
you have a full 42” in front of the desired installation
location when recessing. When surface mounting, ensure
there is 46” clearance.
2. Recommended 16” on hinge side for full 180º
door swing
While not required, we recommend 16” on hinge side to
allow the door to open fully against the wall, ensuring
optimal standing area when ironing.
Items to Note:
Page 2 of 3
Installation Types
Recessed
Placed into the wall, between 16” on center studs,
protruding 3 7/8” into the room. It is recommended to
attach a 2” x 4” cleat to studs, level with bottom of the
opening to support cabinet when installing.
Surface Mount
Installed directly onto the wall, with no cutout, centered
and anchored on secure stud. Will protrude 7 3/4” into
room. Optional surface mount kit is available to finish
sides of unit and recommended for complete installation.