Installation Instructions

258898 ED/EDR/EDOR
FRANÇAIS fr - 11
10.5 Branchements électriques
Avant de réaliser les branchements
électriques, il faut que le chauffe-
eau soit entièrement rempli d’eau et
qu’il ne présente aucune fuite.
11 Mise en service/
mise hors service
11.1 Mise en service
• Contrôlez que le chauffe-eau soit entièrement
rempli d’eau et qu’il n’y ait au cune fuite.
• Branchezl’appareil.
Suite à l’installation et au remplis-
sage d’eau, le chauffe-eau doit être
mis en service dans les trois mois
pour en garantir le bon fonction-
nement.
11.2 Contrôle du fonctionnement
Une fois l’appareil mis en service, vérifiez les
points suivants:
- L’eau d’expansion doit s’égoutter hors de
la valve de décharge ou du mitigeur sans
pression. Cela est nécessaire afin d’éviter
la formation d’une pression trop élevée
dans le chauffe-eau pendant la chauffe;
- L’appareil ne doit présenter aucune fuite, cela
également 30 minutes après la mise en service.
11.3 Mise hors service
• Débranchezl’appareil.Lerobinetprincipal
du conduit d’eau peut demeurer ouvert.
11.4 Vidange du chauffe-eau
• Débranchezlechauffe-eau.
• Purgezquelqueslitresd’eaudurobinet
d’eau chaude.
• Fermezlerobinetprincipalduconduitd’eau.
• Fermezlerobinetd’arrêtdelagroupede
sécurité.
• Ouvrezunrobinetd’eauchaude;fermez-
le dès qu’il ne fournit plus d’eau chaude.
• Prenezlesmesuresnécessairespourrecueillir
l’eau provenant d’éventuelles fuites.
10.3 Raccordement du conduit
d’évacuation
• Installezunentonnoirouvertdansle
conduit d’évacuation, directement à la
suite de la valve de décharge.
• Installezunsiphonsurleconduit
d’évacuation si ce dernier est relié direc-
tement à l’égout.
10.4 Remplissage du chauffe-eau
• Ouvrezlerobinetd’eauchaude.
• Ouvrezlerobinetd’arrêtdugroupede
sécurité.
• Ouvrezlerobinetprincipalduconduit
d’eau.
• Laisserlechauffe-eaubiencirculer.
• Retirezlecouvercleetassurez-vous
que l’installation ne présente pas fuite.
• Isolezleconduitd’eauchaude.
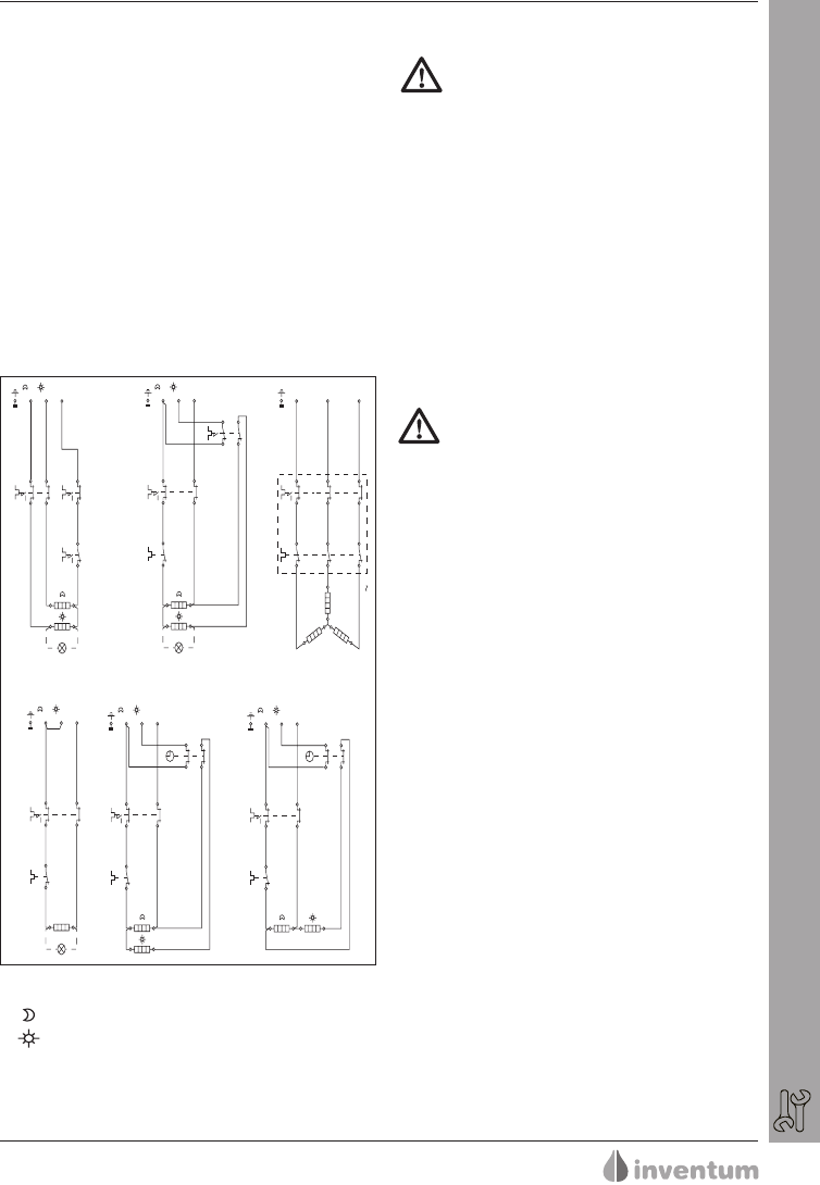
L
EDR/EDOR..3
L
N
TB
TR
TR
L
EDR..1
L
N
TB
TR
L
L
N
EDOR..1
TB
TR
ED ..0 (3 )
L2
L1
L3
TB
TR
EDR/EDOR..0
L
L
N
TB
TR
TB
TB
L
TR
EDR/EDOR..2
L
N
TR = Régulateur de température
TB = Limiteur de température
L = Phase branchement courant de nuit
L = Phase branchement courant de jour
N = Branchement zéro
L1- L2 -L3 = Branchement triphasé
Fig. 7 Schémas de branchement électrique
• Désactivezlecourantdansleplacardà
compteurs, de sorte que le branchement
puisse se réaliser sans tension.
• Raccordezlechauffe-eauconformément
au schéma correspondant (fig. 7).
• Montezlecouverclemuniduproléd’étanchéité.
• Dévissezlagroupedesécuritéduchauffe-eau.
• Branchezuntuyaudevidangesurleraccor-
dement d’eau froide du chauffe-eau; placez
l’extrémité du tuyau du vidange à un endroit
où l’eau peut être évacuée correctement.
• Ouvrezunrobinetd’eauchaudeoudévis-
sez l’écrou de serrage du raccordement
d’eau chaude.










