Manual

EMERGENCY COMBINATION SYSTEM
11
ECS-6216P/S
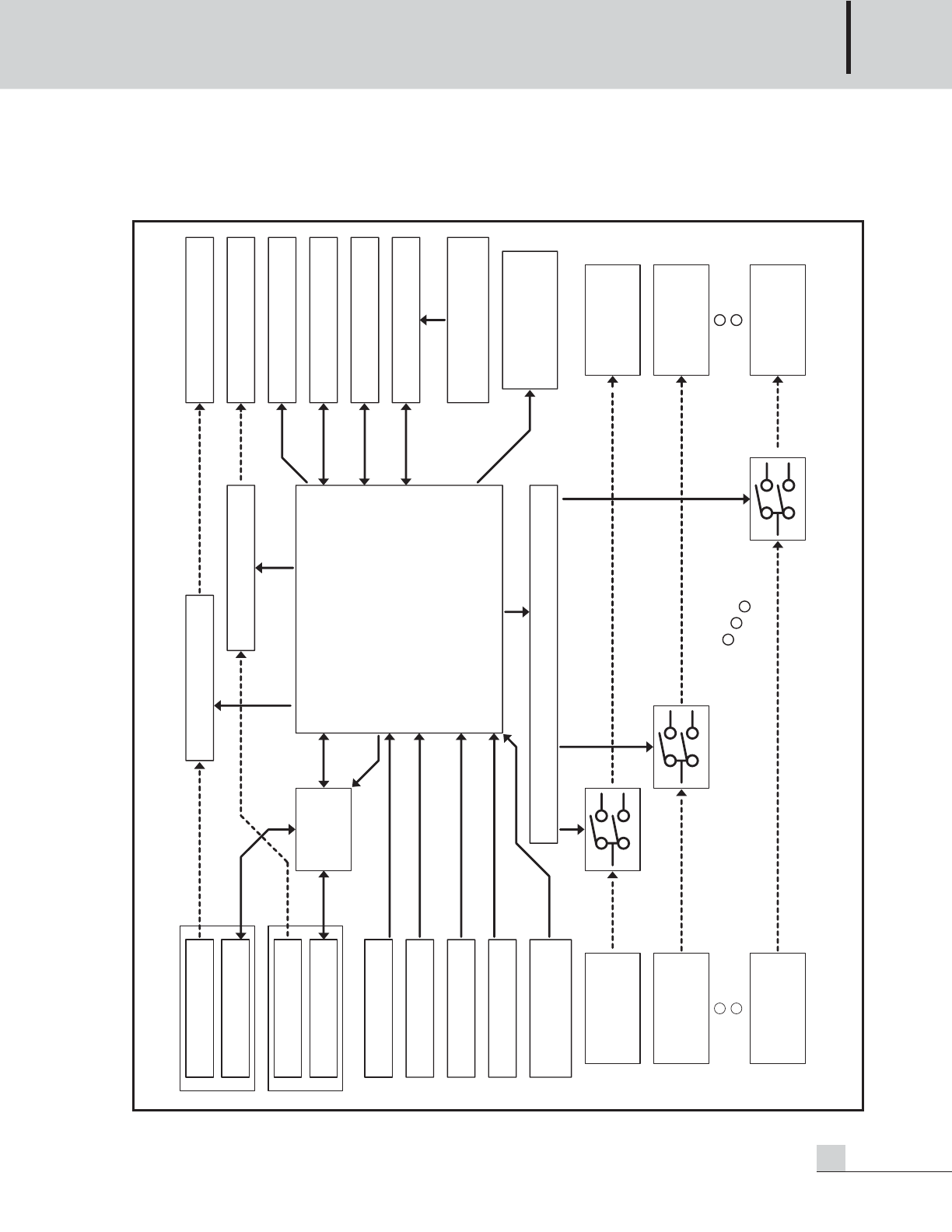
Block Diagram
Block Diagram
RM1 AUDIO IN
RM1 RS-422 COMM
RM1 AUDIO IN
ADDRESS SWITCH
TIMER INPUT
EXT INPUT
KEY INPUT
AMP INPUT
CH1
AMP INPUT
CH2
AMP INPUT
CH16
FIRE CONTACT
INPUT CH1~16
RM1 RS-422 COMM
RELAY CONTROL
MCU
RM COMM
SELECTOR
RM1 MUTE CONTROL
RM2 MUTE CONTROL
RM1 AUDIO OUT
RM2 AUDIO OUT
EP CONTROL JACK
RS232 COMM PORT1
RS232 COMM PORT2
RS485 COMM
RS485 TERMINATION
SWITCH
FRONT
LED DISPLAY
AMP OUTPUT
CH1
AMP OUTPUT
CH2
AMP OUTPUT
CH16










