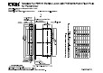
Inonu Template For PD8000 Mortise Locks with FH27&29&31&32 Flush Pulls Unlock your imagination for Pocket Door Case Size: x 6" x x 152mm x 17mm) Backseat: Lock Front: x 203mm x 6mm) Cylinder to Thumb Turn: i UP For door fold here on the edge of door Le A BU Emm) om) Pocket Pulls Trim Hole 8 I ily 355 000 EEE < a o&°2 232 3838 S28 Clg Recess DEEP TO FIT FACE PLATE ¢ FOR OPPOSITE HAND Match With Vertical Line Drawn On Door PLEASE SEE REVERSE SIDE Dimensions do not provide allowances for door silencers, weathe