
4. TECHNICAL SPECIFICATIONS
KPM210/216
54-
291
138
281
42 36
M4
133
(ingresso carta)212
264
32,7 138
5 5
4,7
ingresso cavi alimentazione,
connessione seriale e USB
83
183,2 623
35 2,5
*149,2 *2,5
*2,5
60 2
125,2 14
19
88
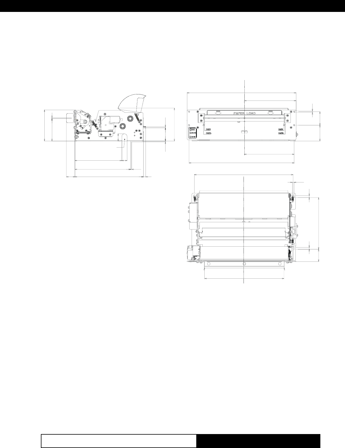
4.2 DIMENSIONS
Figure 4.1 shows the dimensions of the table top printer.
(Fig.4.1)
www.ipcprint.com