User Manual
Manuals
Brands
IEI Integration Manuals
Hardware
BP-3S-RS
1
2
2
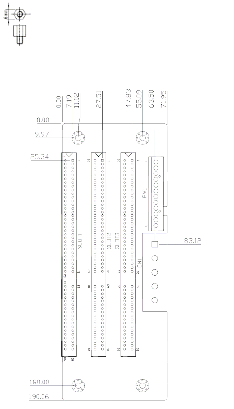
3. No
tice:
a.
Recommend t o use 6mm
wi dt h sp ace r to install
b. Torsion must less than 6lb-inch
4. Dimen
sio
n:
1
2