Datasheet

YW-Baureihe Seite 31
YW-Baureihe: Montagehinweise
Vorkehrungen gegen Rauschen
Bedienungshinweise
Bezeichnungsschild
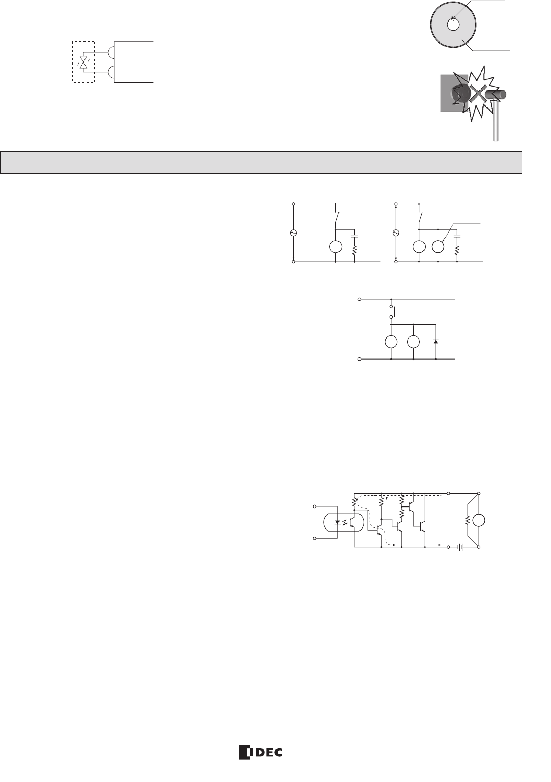
Einteilige Meldeleuchten in Schaltkreisen mit Rauschen
sollten mit einem Rauschunterdrücker an den Klemmen X1
und X2 verdrahtet werden:
Schlüsselschalter
Vor dem Drehen sicherstellen, dass der Schlüssel vollstän-
dig eingesetzt ist, andernfalls droht die Beschädigung des
Geräts.
LED-Leuchtmittel
LEDs bestehen aus Halbleitern. Wenn die zulässige Be-
triebsspannung überschritten wird, werden sie dunkler,
verändern die Farbe oder fallen ganz aus. Das gleiche
kann passieren, wenn Rauschen oder Fremdspannung
bzw. -stromstärke auf LEDs einwirkt. Bei der Verwendung
von LEDs bitte die folgenden Hinweise beachten.
• Betriebsspannung
LEDs haben eine Betriebsspannung von 6 V, 12 V, 24 V,
110 V oder 230/240 V AC/DC, die jeweils um ±10% der
Nennspannung (AC/DC) variieren kann. Lediglich die Aus-
führungen mit 230/240 V AC/DC haben eine Grenze von
250 V AC/DC max.
• Gleichspannung (DC)
1. Schaltnetzteile
Die regulierte Spannung eines Schaltnetzteils ist bes-
tens geeignet. Stellen Sie lediglich die korrekte Betriebs-
spannung der LEDs sicher.
2. Wiederaufl adbare Batterien
Bitte beachten Sie, dass während eines Ladevorgangs
sowie direkt im Anschluss daran die Spannung der Bat-
terie über der zulässigen Grenze liegen kann. Stellen Sie
eine Betriebsspannung von ±10% der Nennspannung
sicher, lediglich die Ausführungen mit 230/240 V AC/DC
haben eine Grenze von 250 V AC/DC max.
3. Vollwellen-Gleichrichter
Weil LEDs AC/DC-kompatibel sind, ist eine Brückendio-
de zur Gleichrichtung nicht erforderlich. Falls doch eine
verwendet wird, so wirkt sich dies auf die Helligkeit der
LEDs aus.
4. Halbwellen-Gleichrichter
Diese eigenen sich nicht für die Stromversorgung von
LEDs. Bitte verwenden Sie statt dessen konstante
Gleichspannung.
• Rauschen
Die Leistung von LEDs verschlechtert sich durch Rau-
schen, was sich mit schlechterer Leuchtkraft, Falsch-
farben oder Ausfall bemerkbar macht. Wenn absehbar
ist, dass solche Effekte auftreten können, sollten Sie
RC-Stellglieder bzw. Stromspitzenbegrenzer zusätzlich
einsetzen.
Wenn der Verdrehschutz nicht
erforderlich ist, entfernen Sie die
Ausnehmung mit einer Zange.
Sorgfältiger Umgang
Setzen Sie die Geräte der YW-Bau-
reihe keinen übermäßigen Stößen
oder Vibrationen aus, weil diese
sonst beschädigt werden und die
Funktion versagen kann.
Schutzschaltkreis Nr. 1: AC Spannung
Schutzschaltkreis Nr. 2: DC Spannung
Gegenmaßnahmen gegen schwache Beleuchtung
1. Die Leckspannung durch Transistoren oder Schutz-
schaltkreise kann zu schwacher Beleuchtung von LEDs
führen.
2. Wenn eine LED mit solcher Fremdspannung schwach
leuchtet, empfehlen wir den folgenden Schaltkreis als
Gegenmaßnahme.
Schaltkreis-Beispiel
Schalten Sie den Shunt-Widerstand R parallel zur LED.
Bestellhinweise
Zum Bestellen geben Sie bitte die Typen-Nr. sowie die
gewünschte Menge an.
Ersatz-Kontaktblöcke werden immer in Verpackungen mit
jeweils 10 Stück angeboten.
Ausnehmung
Namensschild
LED mit
Spannungs-
wandler
LED
R
C
LED
Ry
Relais
oder
Spule
R
C
LED mit Spannungs-
wandler
Ry
LED
Diode
Relais
oder
Spule
+
–
X2
X1
Rauschunterdrücker
R
Io
Io: Leckstrom trotz getrennter Spannungsquelle
R: Shunt-Widerstand
LED










