Information

1514
Side Cover
Partially-stripped (×2)
24AWG
A-A sec. (enlarged view)
(When M5 screw is installed)
9 to 11
Screw Length
(Note 2)
Mounting Panel
Plain Washer
Spring Washer
M5 Screw
Housing
(
25
)
510
55
432
84
12.7
ø4.6
12.5
(
35
)
24.872
360
120
72
±0.2
360
±0.2
120
±0.2
230
±0.2
Front Cover
Illumination Surface
Housing
A
A
M5
Cable
P0.8
8-ø5.5
ø
8 (Note 2)
LF1D-J2F-2∗-∗B∗ (M12 connector)
Cable Length
Brown: +24V DC
Blue: –0V DC
Pin Assignment
+24V DC
–0V DC
NC
NC
Note 1: When leading the cable from the cable gland on the back, provide a
hole in the mounting plate. A ø16 hole is necessary when using the
LF1D-
∗
2F-2N-
∗
B
∗
(M12 connector type).
Note 2: Choose mounting screws in consideration of mounting plate thickness.
1470 46.8
ø14.8
M12 connector: SAC-4P-MS SCO/150/1.5
Use a connector that satisfies the required
degree of protection.
Recommended connector:
SAC-4P-1.5-PUR/FS SCO
Note 2:
When using the angle adjustable mounting
bracket, the tolerance is 374 when the gasket
diameter is larger than
ø
10 and
ø
12 or smaller.
4-M5
P0.8
Effective thread:10mm
Cable Length: 5m
Axis Center
Side Cover
Brown: L(+)
Blue: N (–)
Pink: ( )
Housing
Front CoverIllumination Surface
Mounting Bracket
LF9Z-1MDE1
(Angle Adjustable
Mounting Bracket)
(When using no accessories)
2-
ø
5.2
4-ø5.2
8
12
60
60
8
60
±0.2
60
±0.2
227
±0.2
4-M5
P0.8
Effective thread:
10mm
M8
P1.0
Effective thread:
5mm
12
R2.6
ø5
58.6
183.6
27
2
1.5
25.9
40
310
292
270
74.7
227
(107)(120)
60
Parially-stripped (×2)
24AWG
2
124.8
90°
62
36
(87.5)
9 75
27.5
77
R60
ø15
(Note 1)
124.8
±1
40
±0.2
292
±2
4-M5 Screws
+0.2
0
(Note 2)
–0.5
+2.0
Note 1:
When leading the cable from the cable gland
on the back, provide a hole in the mounting plate.
Angle: 0°
Angle: 90°
TM TM
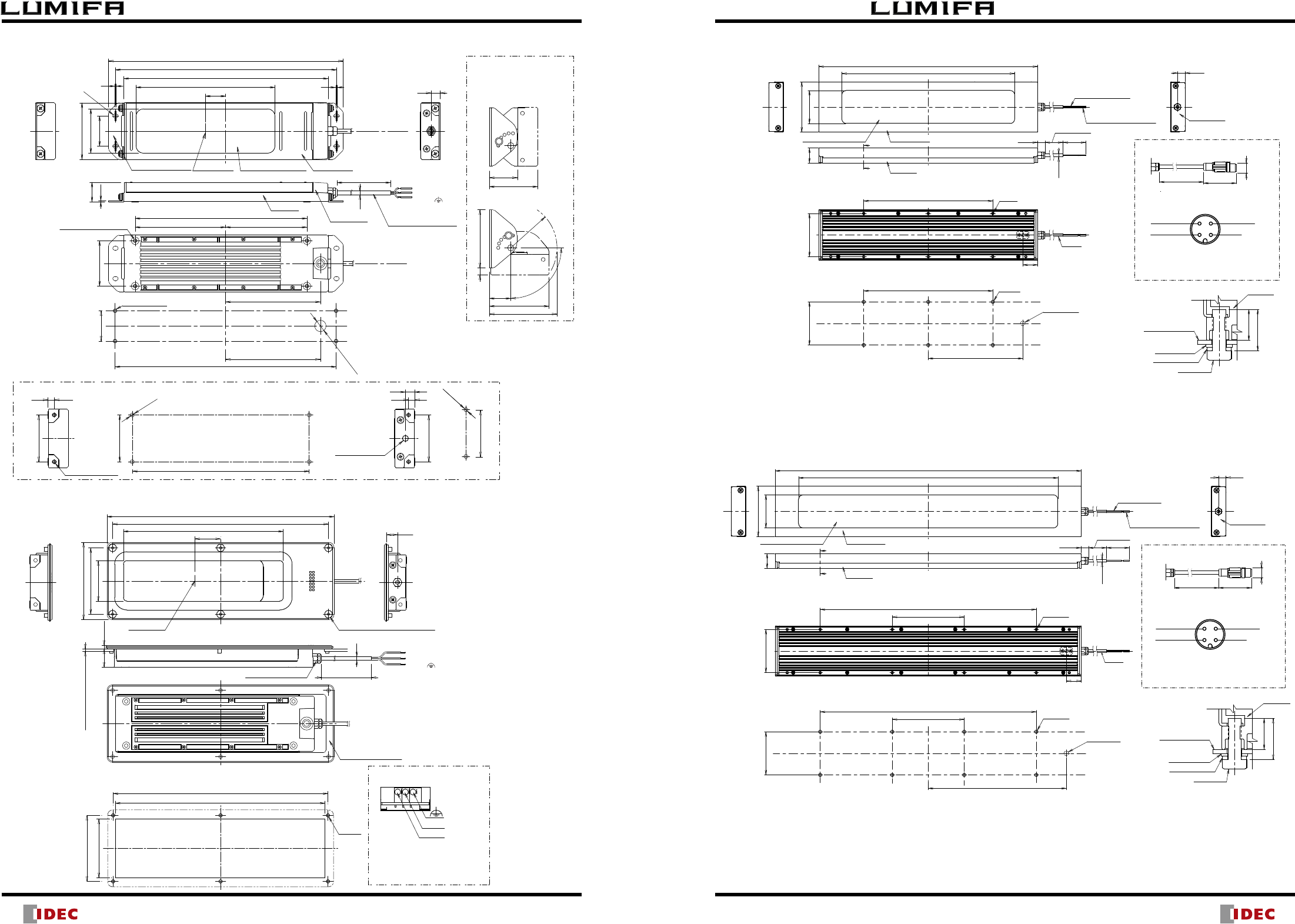
LF1D/LF2D LED Illumination Units LF1D/LF2D LED Illumination Units
LF1D-H (Long Model, 365 mm)
All dimensions in mm.
LF1D-F/FH (Wide Model/Box) (7 LEDs × 2 rows)
Mounting Hole
Layout
Mounting Hole Layout
LF2D-F/FH (Wide Model/Flange) (7 LEDs × 2 rows)
Mounting Hole Layout
All dimensions in mm.
LF1D-J (long model, 510 mm)
Mounting Hole Layout
365
55
288
84
24.8
72
215
ø4.6
(25)
12.5
(
35
)
72
±0.2
215
±0.2
157.5
±0.2
12.7
Side Cover
Partially-stripped (×2)
24AWG
Brown: +24V DC
Blue: –0V DC
A
A
M5
P0.8
ø8 (Note 1)
6-ø5.5
1470
LF1D-H2F-2∗-∗B∗ (M12 connector)
46.8
ø14.8
A-A sec. (enlarged view)
(When M5 screw is installed)
9 to 11
Screw Length
(Note 2)
Mounting Panel
Plain Washer
Spring Washer
M5 Screw
Housing
+24V DC
–0V DC
NC
NC
Pin Assignment
Front Cover
Illumination Surface
Housing
Cable
Cable Length
Note 1: When leading the cable from the cable gland on the back, provide a
hole in the mounting plate. A ø16 hole is necessary when using the
LF1D-
∗
2F-2N-
∗
B
∗
(M12 connector type).
Note 2: Choose mounting screws in consideration of mounting plate thickness.
M12 connector: SAC-4P-MS SCO/150/1.5
Use a connector that satisfies the required
degree of protection.
Recommended connector:
SAC-4P-1.5-PUR/FS SCO
Axis Center
Panel thickness: 5 max
+ Gasket (supplied with LF2D)
6-M5×10 Hexagon Socket
Cable Length: 5m
Cable Gland (Note)
Note: External diameter of cable gland is ø20mm
(+)
(–)
Applicable ferrules: 0.25 to 0.75mm
2
Recommended source:
AI 0.25-12BU, AI 0.34-12TQ,
AI 0.5-12 WH, AI 0.75-12GY
Terminal Block Wiring
ø5
35
14.8
55
217
90
308
293
105
5 max.24.8
Brown: L(+)
Blue: N (–)
Pink: ( )
Waterproof Gasket
(suplied with LF2D)
286
+0.2
0
80
+0.2
0
90
±0.2
293
±0.2
6-M5
Screws
(13/02/15) (13/02/15)