Datasheet
Table Of Contents

6
HS5D Miniature Interlock Switches
•In order to avoid electric shock or fire, only the professional engi-
neer authorized by the operator must be allowed turn the power
off before installation, removal, wire connection, maintenance, or
inspection of the interlock switch.
•If relays are used in the circuit between the interlock switch and
the load, use only safety relays, since welded or sticking con-
tacts of standard relays may invalidate the functions of the inter-
lock switch (performing risk assessment and making up a safety
circuit which satises the requirements of the safety category).
•For wiring, use wires of a proper size to meet the voltage and
current requirements. Tighten the terminal screws to a recom-
mended torque of 0.6 to 0.8 N·m. Improper soldering or failure to
tighten the terminal screw may cause overheating and re.
•Do not install the actuator in the location where a human body
may come in contact. Otherwise injury may occur.
•Do not place a PLC in the circuit between the interlock switch
and the load. Safety security can be endangered in the event of
a malfunction of the PLC.
•Do not disassemble or modify the interlock switch, otherwise a
malfunction or an accident may occur.
•HS5D interlock switches are Type 2 low level coded interlock-
ing devices (ISO14119). According to ISO14119, the following
is required to minimize defeat when installing and constructing
systems:
1. Prevent dismantling or de-positioning of the elements of the
interlocking device by use of non-detachable xing (e.g. weld-
ing, gluing, one-way screws, riveting). However, use of non-
detachable xing can be an inappropriate solution in cases
where a failure of the interlocking device during lifetime of the
machinery can be expected and a fast change is necessary. In
this case measures mentioned below, should be used to provide
the required level of risk reduction.
2. Apply at least one out of the four measures below.
Mounting out of reach.
Physical obstruction or shielding.
Mounting in hidden position.
Integration of defeat monitoring by means of status
monitoring/cyclic testing.
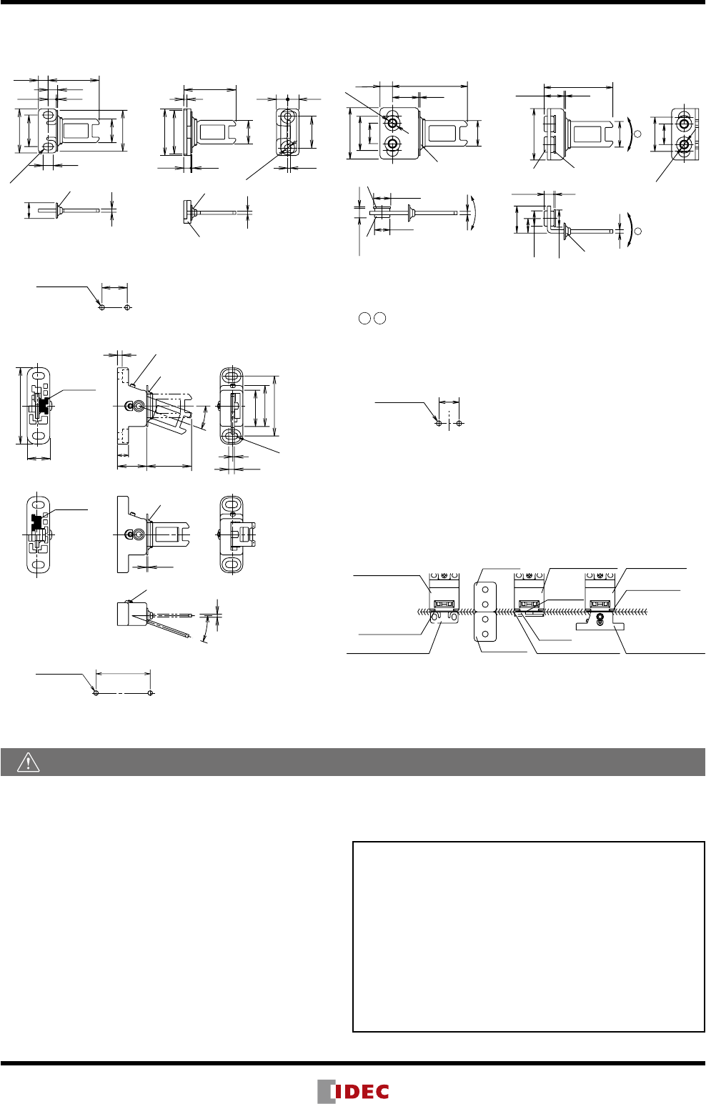
Actuator Dimensions
26
15
32.4
28
20
2.24-R
10
0.85.2
(
6)
6.2
6.4
2
20
2-M4 Screw
Actuator Stop (Note)
15
Actuator Cover
2
2-ø4.4
20
33
30
28
0.84.5
27
.2
7.2
1.6
Actuator Stop (Note)
30
7.3 43.8
15.3
15
2-ø4.3
2
12∗
0.8
(20)
0.8
2-ø10
2-ø9
(5)
Ⓑ
Actuator Stop
(Note)
Washer (supplied with the actuator)
Rubber Bushing
30
15
15.8
8.5
0.8
2
0.8
(11.2)
(39.7)
(
5
)
2-ø9
2-ø10
2-ø4.3
12∗
(
20
)
Washer (supplied
with the actuator)
Rubber Bushing
Actuator Stop (Note)
A
B
7
18.5
29
3
3.6
1
R2.1
23
26
38
0.8
2
20º
20º
Horizontal Swing
Angle Adjustment
(M3 Hexagon Socket Head Screw)
Actuator Stop
(Note)
(M4 Holes)
Actuator Stop
(Note)
Angle Adjustment
(M3 Hexagon Socket Head Screw)
Orienting
Insert
48.4
14.4
Vertical Swing
Orienting
Insert
Straight (HS9Z-A51) Right-angle (HS9Z-A52) Straight w/rubber bushing
(HS9Z-A51A)
Right-angle w/rubber bushing
(HS9Z-A52A)
Angle Adjustable (HS9Z-A55)
Actuator Orientation (Angle Adjustable)
The angle of actuator swing can be changed using the orienting insert
(made of plastic) installed on the back of the actuator. Do not lose the
orienting insert, otherwise the actuator will not operate properly.
Note: The actuator stop is supplied with the actuator and used
when adjusting the actuator position. Remove the actua-
tor stop after the actuator position is determined.
* The mounting center distance is set to 12 mm at factory. When 20-
mm distance is required, adjust the distance by moving the rubber
bushings.
*Mounting centers can be widened to
20 mm by moving the rubber cushions.
12
2-M4 Screw
Actuator Mounting Hole Layout
(Straight w/rubber bushing) (Right-angle w/rubber bushing)
Actuator Mounting Hole Layout
(Straight, Right-angle)
Actuator Mounting Hole Layout (horizontal/vertical swing)
38
2-M4 Screw
: The actuator has exibility to the directions indicated by
the arrows. When 20-mm distance is selected, the actuator
swings vertically.
A
B
Interlock Switch
Actuator Stop
HS9Z-A51 Actuator
Door Stop
Door Stop
Interlock Switch
Actuator
Stop
Actuator
Cover
Interlock Switch
Actuator Stop
HS9Z-A52 Actuator HS9Z-A55 Actuator
Actuator Mounting Reference Position
As shown in the gure below, the mounting reference position of
the actuator when inserted in the interlock switch is where the
actuator stop placed on the actuator lightly touches the interlock
switch.
Note: After mounting the actuator, remove the actuator stop from
the actuator.
Safety Precautions








