Instruction Manual

3-3
Installation method
Installation location and direction
When the SafetyOne is installed in an enclosure, confirm that installation environments meet
the product specifications. Using in environments such as a described below, (over the product
specifications) may cause fire hazard, damage, or malfunction.
・SafetyOne should not be exposed to excessive dust, dirt, salt, vibration or shocks.
・Do not use SafetyOne in an area where corrosive chemicals or flammable gases are present.
・Do not use SafetyOne nearby induction heat source
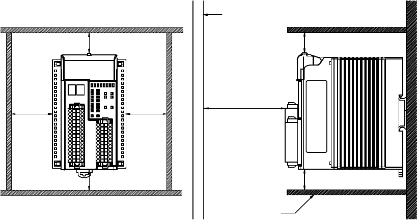
Mount SafetyOne with enough space from any device as shown at Fig3.1 for maintenance and
ventilation. Do not install SafetyOne near, and especially above, any heating device or heat
source.
40mm
or more
40mm
or more
20mm or more
20mm or more
80mm or more
20mm or more
20mm or more
Pannel
Duct
Fig. 3.1 Installation location










