Flaked ICE Machine Service and Installation Manual

Table Of Contents
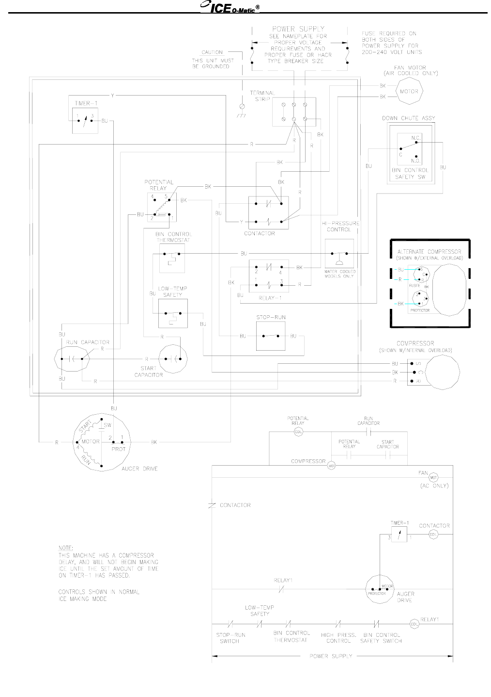
Flake Ice Machines Electrical System
Page G10
9071956-01
EMF705/1005/1006A/W