Flaked ICE Machine Service and Installation Manual

Table Of Contents
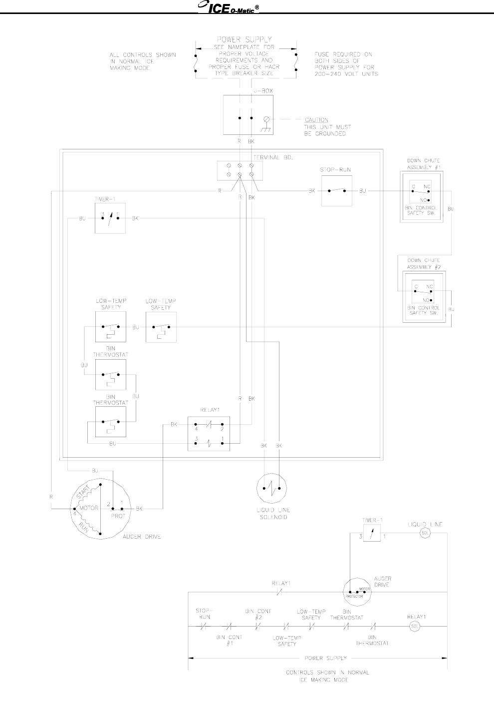
Flake Ice Machines Electrical System
Page G14
9071959-01
EMF2305L