Flaked ICE Machine Service and Installation Manual

Table Of Contents
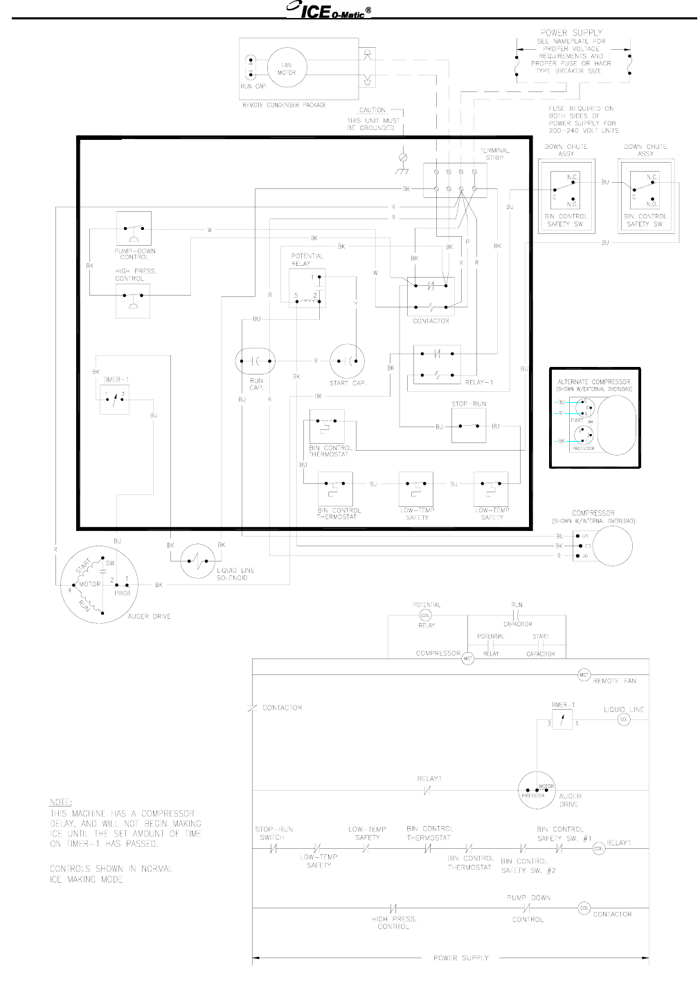
Flake Ice Machines Electrical System
Page G13
9071960-01
EMF2306R