Flaked ICE Machine Service and Installation Manual

Table Of Contents
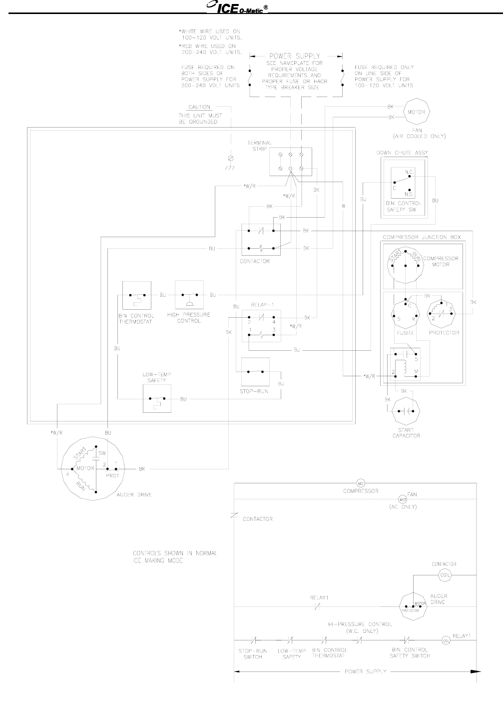
Flake Ice Machines Electrical System
Page G8
EMF450/405A/W
9071958-01