Flaked ICE Machine Service and Installation Manual

Table Of Contents
Flake Ice Machines General Information
Page A9
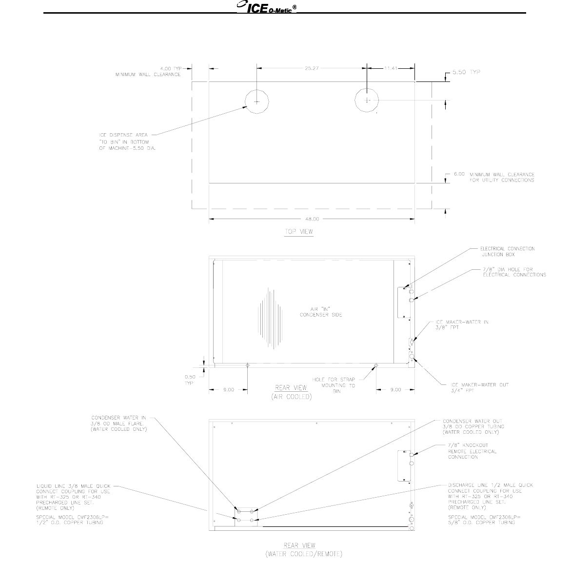
EMF Series (48 Inch Wide)