Eden/Ezra Processor User's Manual

Table Of Contents
PCM-9575 User’s Manual 10
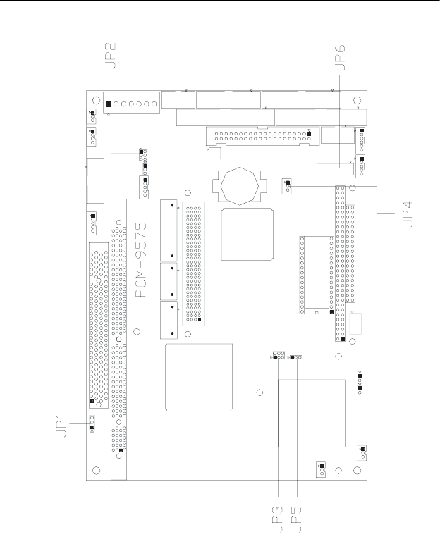
2.3 Locating jumpers
Figure 2.1: Jumper locations