Eden/Ezra Processor User's Manual

Table Of Contents
PCM-9575 User’s Manual 6
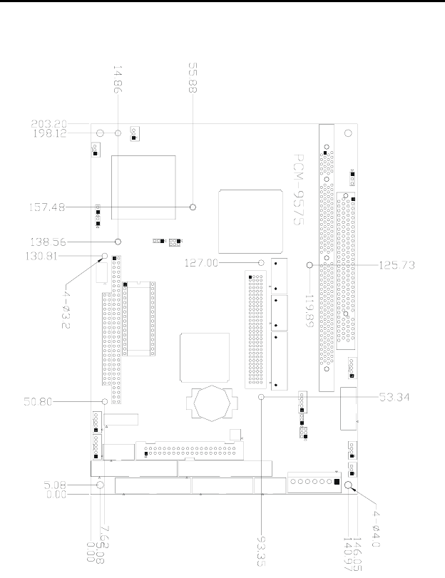
1.4 Board layout: dimensions
Figure 1.1: Board layout: dimensions