Eden/Ezra Processor User's Manual

Table Of Contents
TPC-642 User’s Manual 118
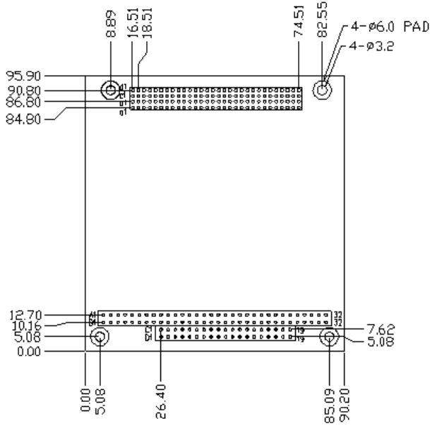
Figure B.2: PC/104+ module dimensions (mm) (±0.1)