Owner's manual
Table Of Contents
- Cover
- Please Read Before Use
- Table of Contents
- Safety Guide
- Caution in Handling
- International Standards Compliances
- Names of the Parts
- 1. Specifications Check
- 2. Installation
- 3. Connecting with the Controller
- 4. Operation
- 5. Troubleshooting
- 6. Maintenance and Inspection
- 7. Life
- 8. External Dimensions
- 9. Warranty
- Change History

1. Specications Check
25
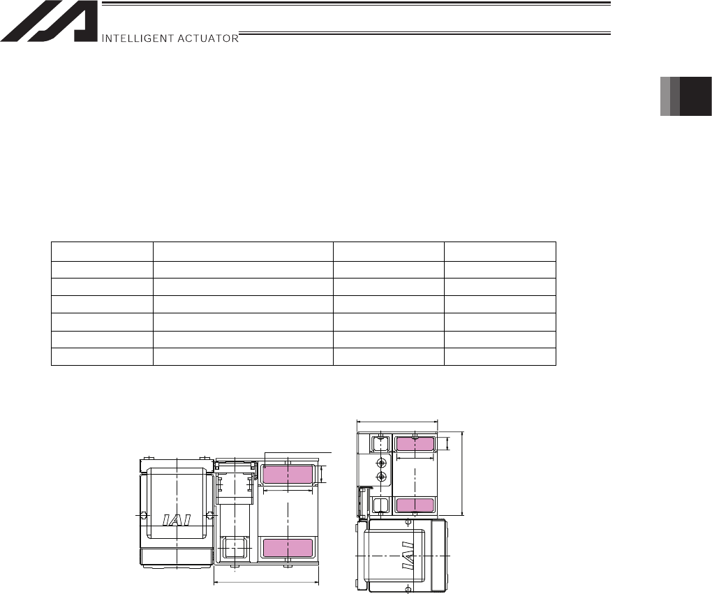
1.4.3 Cable Track for User M Type
Attachment Orientations 1 to 6 (Model: UM1 to UM6)
These are the indications when attaching M Type User Cable Track to the standard cable track.
Attachment orientation is also to be indicated. The attachment orientation of cable track is either
the four orientations in Standard Horizontal Orientation Mount or two orientations in Horizontally
Oriented Wall Mount. [Refer to “Attachment Orientation” in the “1.4.1 Cable Track Attachment
Orientations 2 to 6 (Model: CT2 to CT6)”]
Refer to the table below for the availability of Single Slider and Double Slider.
Option Model Attachment Orientation Single Slider Double Slider
UM1 Attachment Orientation 1
{ {
UM2 Attachment Orientation 2
{
u
UM3 Attachment Orientation 3
{
u
UM4 Attachment Orientation 4
{
u
UM5 Attachment Orientation 5
{ {
UM6 Attachment Orientation 6
{
u
[Dimensional Drawing for M Type User Cable]
14
88
40
91
14
40
85
Cable Track for user
Horizontal Type Horizontally Oriented
Wall Mount Type