Instruction Manual

HDA 5500 for HLB 1000 and CS 1000
- 5 -
6 Installation and commissioning
6.1 Mechanical installation
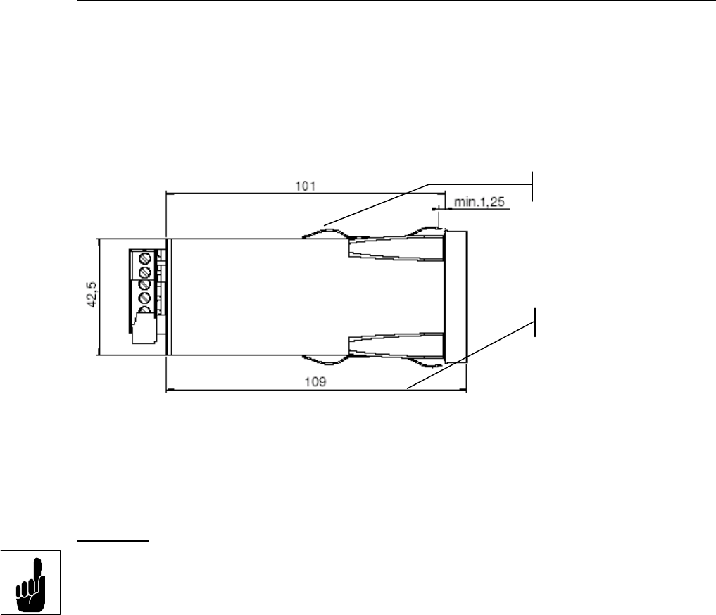
The HDA 5500 is a control panel unit with a standard mounting housing 96 x 48 mm and
requires a control panel cut-out: 92 x 45 mm
• Control panel thickness: at least 1.25 mm
• Mounting depth: at least 150 mm
6.2 Electrical connection
The electrical connection must be carried out by a qualified electrician in accordance with
relevant regulations in the country concerned (in Germany: VDE 0100).
Important
:
In order to fulfil the relevant EMC standards, subject to the ambient conditions, the screening
effect of the control box must comply with the EMC standard.
Additional installation notes which, from experience, reduce the effect of electromagnetic
interference:
• Make line connections as short as possible.
• Use screened lines (e.g. LIYCY 4 x 0.5 mm²).
• The cable screening must be fitted by qualified personnel subject to the ambient
conditions and with the aim of suppressing interference.
• Direct proximity to interference must be avoided as far as possible.
If inductive loads are to be switched using the relays, varistors or regenerative diodes must
be used on the load to prevent high switch-off surges.
Panel clips
Panel thickness
Clamping guides