Instruction Manual

HDA 5500 for HLB 1000 and CS 1000
- 23 -
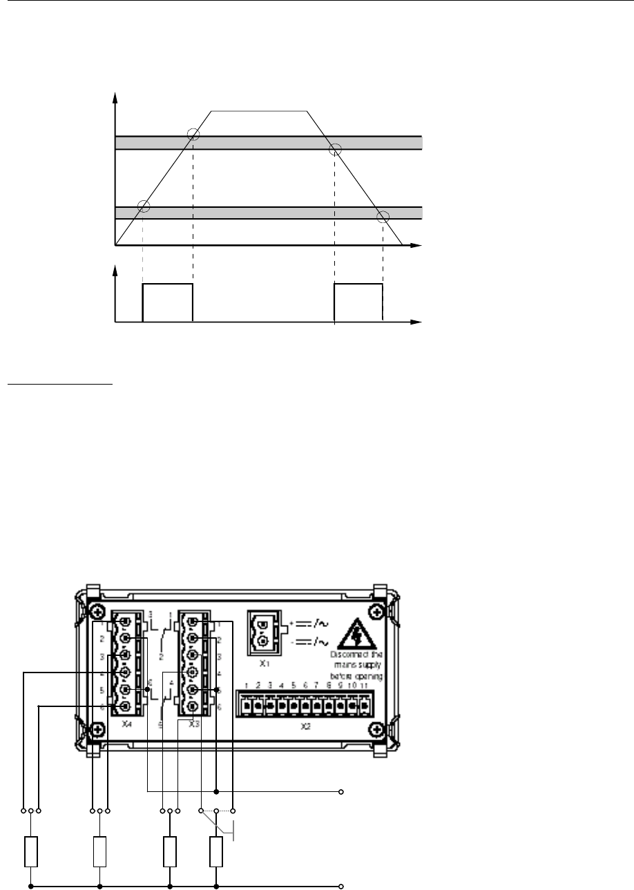
Example for switching output 1 (relay activated):
Abbreviations:
"HI 1" to "HI 4" = High level 1 to 4 = upper switch point 1 or 4
"Lo 1" to "Lo 4"= Low level 1 to 4 = lower switch point 1 or 4
"FS" (Full Scale) = relative to full measuring range
10.3 Connection of up to four switching outputs
Connection example
Depending on the auxiliary voltage and load (especially for inductive loads) the external
circuit must be fitted with a varistor.
Load 1
Aux. voltage
for load 1..4
SP1 N/C
SP2
N/C
SP2
N/O
Load 2
SP1 N/O
SP3
N/C
SP3
N/O
Load 3
SP4
N/C
SP4
N/O
Load 4
Lo.1
hi.1 plus 1% FS
Lo.1 minus 1% FS
Measured variable
t
Safety Zone
Safety Zone
On
Off
Off
On
On
Off
Switch-back value
Switching value
Switch-back value
Switching value
hi.1