User's Manual
Table Of Contents
- Table Of Contents
- General Instructions
- Cut & Plan Views
- Installation
- Leveling
- Splash Guard
- Plumbing
- Waste Outlet And P-trap
- Refrigeration
- T-stat Location
- Electrical
- Wiring Color Code
- Ashrae Color Code
- User Information
- Stocking
- Case Cleaning
- Maintenance
- Electrical Precautions
- Replacing Fluorescent Lamps
- Tips & Troubleshooting
- Electrical And Refrigeration Specifications
- Electrical Schematics
- Appendices
- Appendix A. – Temperature Guidelines
- Appendix B. – Application Recommendations
- Appendix C. – Field Recommendations -
- Appendix D. – Recommendations To User -

IGIP-DBP, DBRP 01,03-0210
12
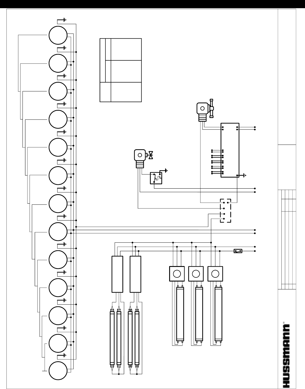
Electrical Schematics
By:
Checked By:
No. Description:
Revisions:
dbrp-01.dft
Hussmann Corporation
13770 Ramona Avenue
Chino, CA. 91710
(909)-590-4910
Lic.#: 644406
Date:
Drawing Title:
Next Assembly:
Drawn By:
Drawing No.:
Project Title:
Date:
Abraham C. Hui
ACH
07/29/98
X
Sheet 1 of 1
DBRP-01/03 Wiring Diagram
BALLAST B-232
B
Computer Case
Controller
To Sensors
S
S
MOTOR
BALLAST B-232
B
B
MOTOR
MOTOR
MOTOR
MOTOR
MOTOR
MOTOR
MOTOR
MOTOR
MOTOR
MOTOR
MOTOR
MOTOR
8'
10'
12' 14'
16' 18' 20'
22' 24' 26' 28' 30' 32'
Evaporator Fan Motors
Lighted Shelves (Optional for DBRP-03 case only)
Lithonia self contained Ledge Lights (Optional)
(No. of lamps varies with case length)
(No. of lamps varies with case length)
Liquid Solenoid (Optional)
Thermostat
Tx-Valve (Optional)
General
Grounding
Area
Orange Brown Red (230V.)
Black/White (115V.)
Labeled "Controller"
Case
Length
No. Fans
DBRP-01 DBRP-03
Octagon
Crown
1-Point
2-Point
3-Point
6
6
7
8
-
-
-
-
-
-










