User's Manual
Table Of Contents
- HP Moonshot Switch User and Maintenance Guide
- Abstract
- Notice
- Contents
- Component and LED identification
- Operations
- Setup
- Configuration
- Troubleshooting
- Illustrated parts catalog
- Removal and replacement procedures
- Regulatory information
- Electrostatic discharge
- Support and other resources
- Acronyms and abbreviations
- Documentation feedback
- Index

Component and LED identification 8
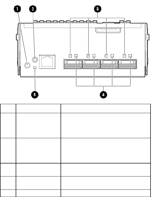
Uplink module buttons and LEDs
Item Description Status
1
Uplink module UID
LED/button
Solid blue = Switch module ID is selected.
Flashing blue = Switch module firmware
update is in progress.
Off = Switch module ID is not selected.
2
Uplink module health
LED
Green = Normal operation
Flashing amber = Degraded condition
Flashing red = Critical condition
Off = No power
3
Uplink module link
LED
Solid green = Link
Off = No link
4
Uplink module
activity LED
Flashing green = Activity
Off = No activity
5
Reset button Resets the switch module










