HP ProLiant ML330 G6 Server User Guide
Table Of Contents
- HP ProLiant ML330 G6 Server User Guide
- Abstract
- Notice
- Contents
- Component identification
- Operations
- Setup
- Hardware options installation
- Introduction
- Processor option
- Memory options
- Redundant hot-plug power supply option
- Redundant fan assembly option
- SAS or SATA hard drive option
- Expansion hard drive cage option (hot-plug)
- Expansion hard drive cage option (non-hot-plug)
- Removable media devices
- Expansion board options
- PCI-X extender board option
- Storage controller option
- Battery-backed write cache battery pack option
- FBWC module and capacitor pack option
- SAS controller option
- Dedicated iLO 2 port module option
- HP Trusted Platform Module option
- Cabling
- Configuration and utilities
- Troubleshooting
- Battery replacement
- Regulatory compliance notices
- Regulatory compliance identification numbers
- Federal Communications Commission notice
- Declaration of conformity for products marked with the FCC logo, United States only
- Modifications
- Cables
- Canadian notice (Avis Canadien)
- European Union regulatory notice
- Disposal of waste equipment by users in private households in the European Union
- Japanese notice
- BSMI notice
- Korean notice
- Chinese notice
- Laser compliance
- Battery replacement notice
- Taiwan battery recycling notice
- Power cord statement for Japan
- Electrostatic discharge
- Specifications
- Technical support
- Acronyms and abbreviations
- Index

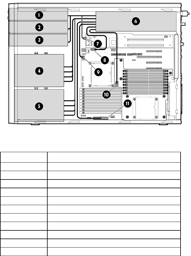
Cabling 83
Non-hot-plug hard drive redundant power cabling
The hard drive backplane uses the 4-pin power connectors.
When connecting SATA hard drives, be sure to use the black SATA power connectors.
Item Description
1
Media bay 11
2
Media bay 10
3
Media bay 9
4
Hard drive bay (hard drives 1-4)
5
Hard drive bay (hard drives 5-8)
6
Power supply
7
4-pin power connector (P19)
8
16-pin power connector
9
4-pin power connector (P3)
10
8-pin power connector
11
24-pin power connector










