HP ProLiant DL360 G6 Server User Guide

Table Of Contents
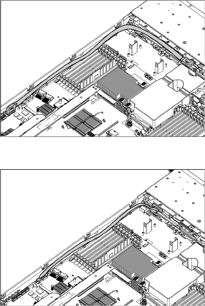
Cabling 71
DVD-ROM and DVD-RW drive cabling
Power button and Systems Insight Display cabling