H3C S7502 Ethernet Switch Installation Manual
Table Of Contents
- 00-1Cover.pdf
- 01-Chapter 1 Product Overview.pdf
- 02-Chapter 2 Line Processing Units.pdf
- 03-Chapter 3 nstallation Preparations.pdf
- 04-Chapter 4 Hardware Installation.pdf
- Chapter 4 Hardware Installation
- 05-Chapter 5 System Commissioning.pdf
- 06-Chapter 6 Hardware Maintenance.pdf
- 07-Chapter 7 Software Maintenance.pdf
- Chapter 7 Software Maintenance
- 7.1 Introduction to Loading Approaches
- 7.2 Loading Software Locally through Boot Menu
- 7.3 Loading Software Remotely or Locally through Command Lines
- 7.4 Booting the Switch with Dual Images
- 7.5 Loading a Host Software Containing the Boot ROM File
- 7.6 Handling Loading Failure
- 7.7 Handling Password Loss
- Chapter 7 Software Maintenance
- 08-Chapter 8 Troubleshooting.pdf
- 09-Appendix A Lightning Protection.pdf
- 10-Appendix B AC Power Cables Used in Different Countries.pdf

Installation Manual
H3C S7502 Ethernet Switch Chapter 2 Line Processing Units
2-25
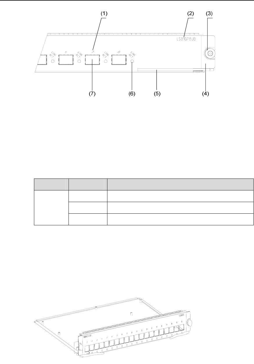
(1) Interface number (2) Silkscreen of the LPU name
(3) Captive screw (4) LPU edge (Purple)
(5) Ejector lever (6) Interface status LED
(7) SFP interface (Gigabit)
Figure 2-33 Partial amplification of LS81GP8UB panel
The following table describes the LED state.
Table 2-24 LED state description of LS81GP8UB
LED State Description
OFF
No link is present.
ON
A link is present
LINK/ACT
Blinking
Packets are being transmitted/received on the port.
2.12.3 Matching Cable
Refer to Table 2-20.
2.13 LS82GP20
Figure 2-34 LS82GP20 appearance










