H3C S7502 Ethernet Switch Installation Manual

Table Of Contents
Installation Manual
H3C S7502 Ethernet Switch Chapter 1 Product Overview
1-13
The status LEDs on an LS81T32P are described in following table.
Table 1-10 Description of LEDs on the panel of an LS81T32P
LED Status
OFF The link is down or no link is presented.
ON The link is active.
LINK/ACT
Blinking Data is being transmitted or received on the port.
1.5.3 Port Cable
Refer to section 1.2.3 "Port Cable” on page 1-5 for information about the port cable
required by an LS81T32P.
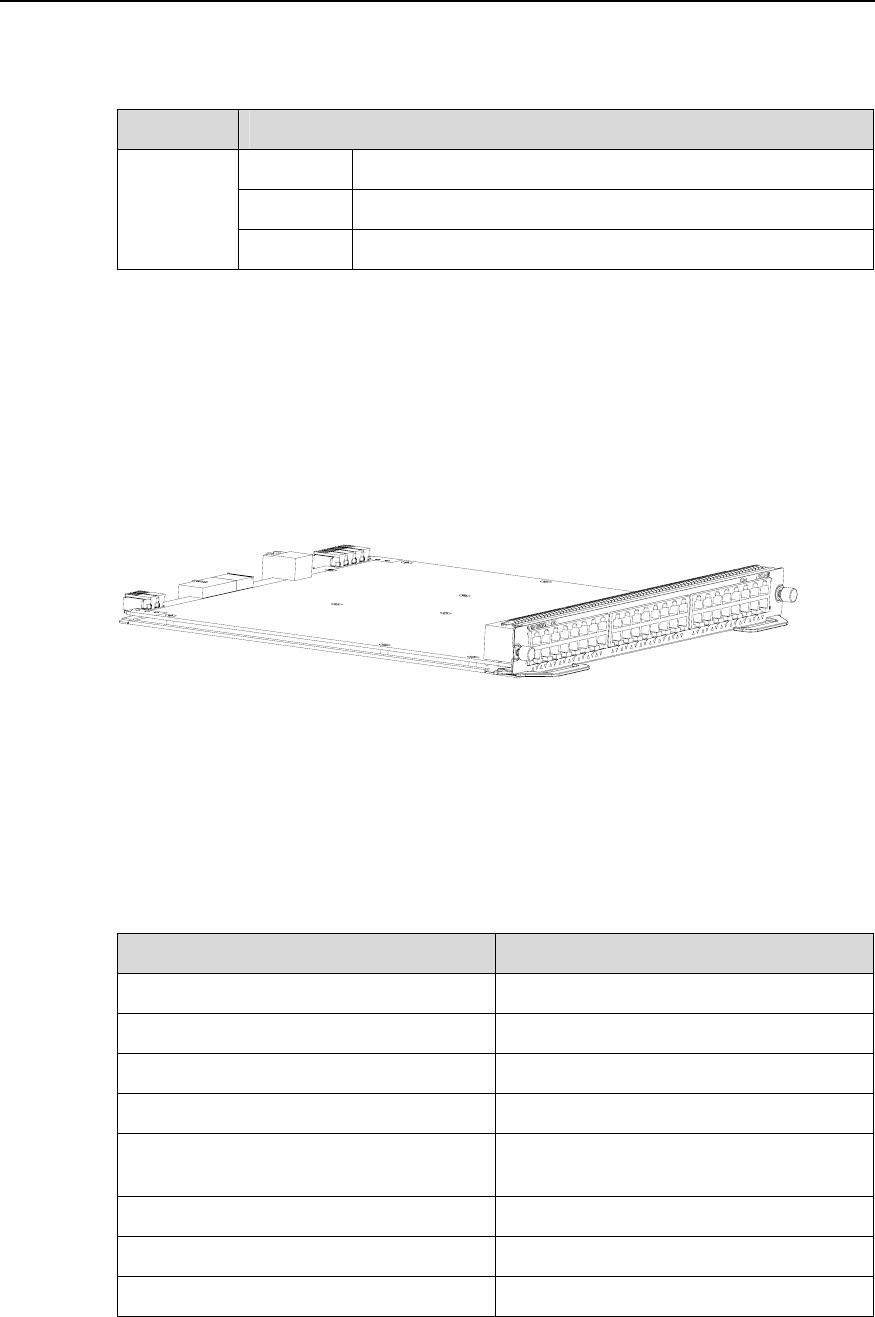
1.6 LS81GT48B
Figure 1-14 Appearance of LS81GT48B
1.6.1 Specifications
LS81GT48B provides the XG high-speed bus, and 48 ×10/100/1000Base-T Ethernet
ports.
Table 1-11 LS81GT48B specifications
Item LS81GT48B
CPU MPC8245 300 MHz
BootROM 512 KB
Flash memory 32 MB
SDRAM 256 MB
Dimensions (H × W x D)
40.1 × 376.7 × 354.5 mm (1.6 × 14.8 ×
14 in.)
Max power consumption 85 W
Connector RJ45
Number of ports 48