HP Netserver LXr Pro8 User Guide

Chapter 6 Installing Additional Boards
46
2. If you have not already done so, extend or detach the satellite chassis and
remove the top cover. (See Chapter 3 for details.)
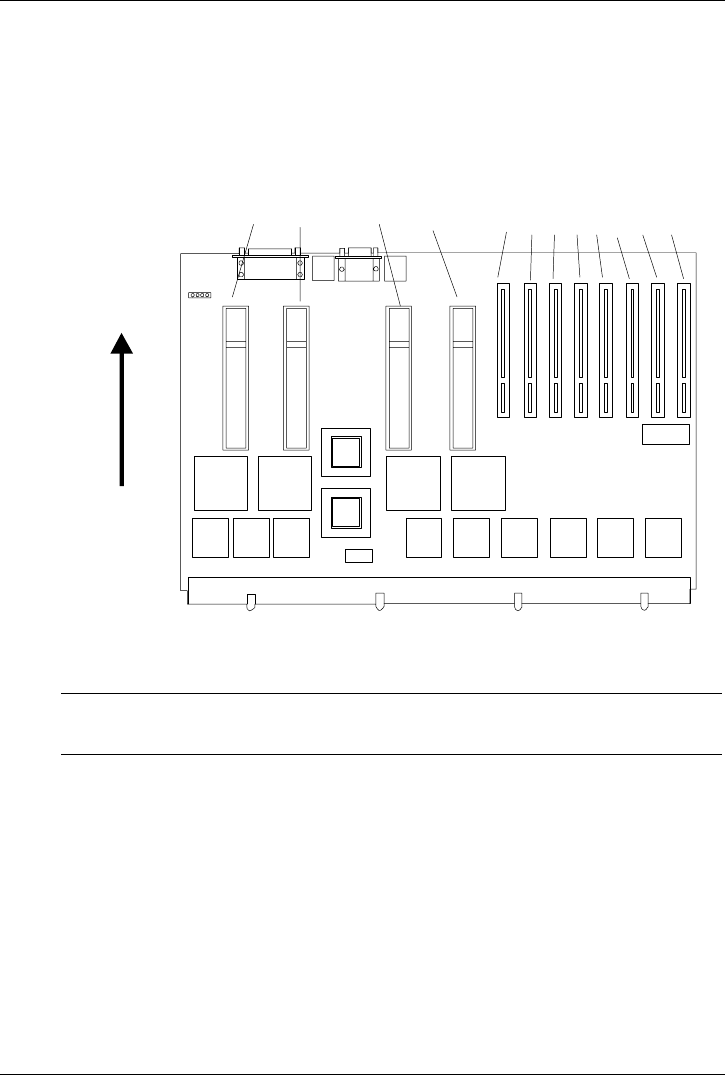
Processor Slots
B1
B2
A1 A2
PCI Slots
12
3
4
56
7
8
Rear of
System
Figure 6-1. HP NetServer System Board Slots
NOTE The HP NetServer's video card can only be in PCI slots
1 through 4.
3. Consider the HP NetServer's boot order when selecting a slot on the
system board (Figure 6-1). If you are installing a SCSI controller board,
the priority of the controllers (where the BIOS will search for the boot
drive) is set by the board’s slot location.
By default the server searches for boot devices in this order:
a. CD-ROM drive
b. Flexible disk drive
c. Hard disk drives on embedded SCSI controller 0. This controller
controls the server's internal mass storage devices.










