HP Netserver LXr Pro8 30/FC Config Guide for Windows NT4.0 Clusters
Manuals
Brands
HP Manuals
Server
HP NetServer LH II
1
2
3
4
5
6
7
8
9
10
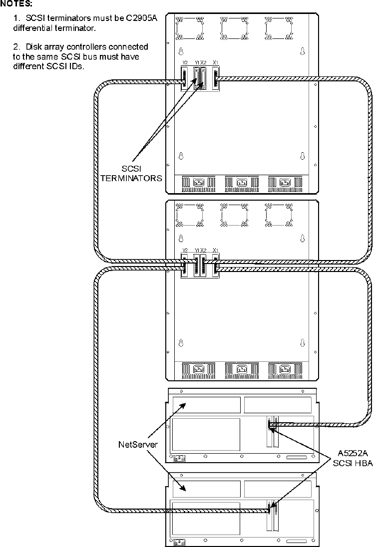
5
HP Microsoft Cluster Server and two daisy-chained HP A
utoRAID Disk A
rray Model 12H
1
...
...
5
6
7
8
9
...
...
69